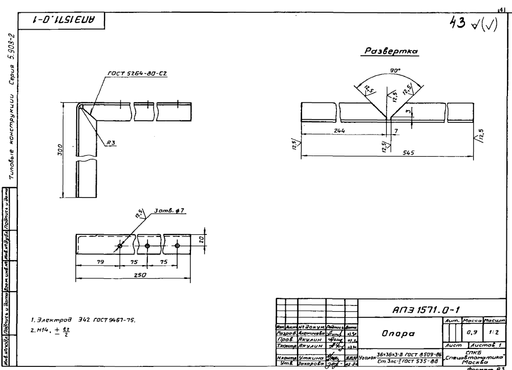
Опора АПЭ 1571.0 серия 5.908-2
Опора АПЭ 1571.0 СБ серия 5.908-2 для крепления трех труб Дн 18-30 мм к железобетонной стене на дюбель-гвоздях
Серия 5.908-2 - это стандарт типовых узлов крепления трубопроводов автоматического пожаротушения, рассчитанные на одновременное действие вертикальных и горизонтальных нагрузок.
Опоры АПЭ 1571.0 СБ серии 5.908-2 применяются для крепления трубопроводов автоматических установок пожаротушения АУП (АУПТ).
Диаметр прокладываемых трубопроводов Дн 18 – 30 мм.
Стандартно опоры АПЭ 1571.0 СБ серия 5.908-2 изготавливаются из марок стали сталь 3, 20, 09Г2С. Стандартное покрытие – транспортировочный грунт ГФ-021.
Опоры АПЭ 1571.0 изготавливаются в соответствии с чертежами АПЭ 1571.0 СБ и техническими требованиями серии 5.908-2.
| Обозначение | Дн, мм | Масса, кг |
| АПЭ 1571.0 | 18...30 | 1,00 |
![]()

Уточним наличие и подготовим КП по этой позиции
Поможем с подбором исполнения, проверим доступность на складе и отправим коммерческое предложение по выбранной позиции или аналогам.