Логотип АстронЭнерго

УКГ 4.00 серия 5.905-18.05

 УКГ 4.00 серия 5.905-18.05

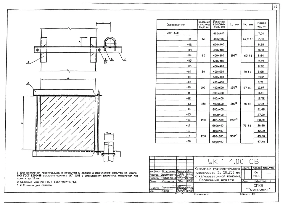
УГК 4.00 СБ Крепление горизонтального газопровода Ду 50 — 250 мм к железобетонной колонне

КРЕПЛЕНИЕ ГОРИЗОНТАЛЬНОГО ГАЗОПРОВОДА УКГ 4.00 СЕРИЯ 5.905-18.05 

 Применяются для крепления трубопроводов систем газоснабжения природным газом

с избыточным давлением до 1,2 МПа (12 кгс/см2), для районов с расчетной температурой окружающей среды не менее -40°С.

Условный диаметр прокладываемых газопроводов Ду 50 — 250 мм.

Стандартно  крепления газопровода УКГ 2.00 изготавливаются из марки стали Ст.3, 20, 09Г2С.
Стандартное покрытие УКГ 2.00 — транспортировочный грунт ГФ-021.
Крепления газопровода УКГ 2.00 СБ изготавливаются в соответствии с чертежами серии 5.905-18.05 выпуск 1.

Пример обозначения крепления горизонтального газопровода Ду 150 к железобетонной колонне 400х600:
Крепление газопровода Ду150 УКГ 4.00-13 с.5.905-18.05 выпуск 1

Описание

Обозначение Условный проход Ду, мм Размер коллоны АхВ, мм L, мм l, мм Масса ед., кг
УКГ 4.00 50 400х400 100⁺⁵ 67,5±1 7,04
УКГ 4.00-01 50 400х600 100⁺⁵ 67,5±1 7,28
УКГ 4.00-02 50 600х400 100⁺⁵ 67,5±1 8,38
УКГ 4.00-03 65 400х400 100⁺⁵ 65±1 8,28
УКГ 4.00-04 65 400х600 100⁺⁵ 65±1 8,64
УКГ 4.00-05 65 600х400 100⁺⁵ 65±1 9,79
УКГ 4.00-06 80 400х400 100⁺⁵ 70±1 8,32
УКГ 4.00-07 80 400х600 100⁺⁵ 70±1 8,68
УКГ 4.00-08 80 600х400 100⁺⁵ 70±1 9,82
УКГ 4.00-09 100 400х400 150⁺⁵ 67±1 9,71
УКГ 4.00-10 100 400х600 150⁺⁵ 67±1 10,07
УКГ 4.00-11 100 600х400 150⁺⁵ 67±1 11,41
УКГ 4.00-12 150 400х400 200⁺⁵ 75±1 18,52
УКГ 4.00-13 150 400х600 200⁺⁵ 75±1 19,15
УКГ 4.00-14 150 600х400 200⁺⁵ 75±1 21,48
УКГ 4.00-15 200 400х400 250⁺⁵ 70±1 27
УКГ 4.00-16 200 400х600 250⁺⁵ 70±1 28
УКГ 4.00-17 200 600х400 250⁺⁵ 70±1 30,88
УКГ 4.00-18 250 400х400 300⁺⁵ 70±1 42,2
УКГ 4.00-19 250 400х600 300⁺⁵ 70±1 43,2
УКГ 4.00-20 250 600х400 300⁺⁵ 70±1 47,48

1772623672712-267371633-kreplenie_gorizontalnogo_gazoprovoda_ukg_400

1772623698352-790156842-kreplenie_gorizontalnogo_gazoprovoda_ukg_400_2

1772623715174-344263371-kreplenie_gorizontalnogo_gazoprovoda_ukg_400_3

1772623729789-850666714-kreplenie_gorizontalnogo_gazoprovoda_ukg_400_4

 

Подбор и поставка

Уточним наличие и подготовим КП по этой позиции

Поможем с подбором исполнения, проверим доступность на складе и отправим коммерческое предложение по выбранной позиции или аналогам.

Смотрите также

Другие подкатегории раздела

Опоры подвижные трубопроводов
подвижные скользящие опоры трубопроводов. Подбор,консультация,продажа со склада в Москве, доставка по РФ
Накладка Т94 серия 4.903-10 выпуск 1 на тройники усиливающая
Накладка Т94 серия 4.903-10 выпуск 1
Опоры водопровода в футляре
Опоры водопровода в футляре.Подбор,консультация,продажа со склада в Москве, доставка по РФ
Опоры 313.ТС-008.000 скользящие для трубопроводов в ППУ изоляции
Опоры 313.ТС-008.000 скользящие для трубопроводов в ППУ изоляции.Подбор,консультация,продажа со склада в Москве, доставка по РФ
Опоры ТД-1-487-1997.00.000 скользящие для трубопроводов в ППУ изоляции
Опоры ТД-1-487-1997.00.000 Подбор,консультация,продажа со склада в Москве, доставка по РФ
Серия 5.900-7 выпуск 3. Серия 5.900-7 выпуск 4
Серия 5.900-7 выпуск 3. Серия 5.900-7 выпуск 4.Подбор,консультация,продажа со склада в Москве, доставка по РФ
Опоры ГОСТ 30732-2006 скользящие опоры для стальных трубопроводов
Опоры ГОСТ 30732-2006/Подбор,консультация,продажа со склада в Москве, доставка по РФ
Хомуты сварные ГОСТ 24138-80
Хомуты сварные по ГОСТ 24138-80. Подбор,консультация,продажа со склада в Москве, доставка по РФ