Логотип АстронЭнерго

УКГ 5.00 серия 5.905-18-05

 УКГ 5.00 серия 5.905-18-05

 УКГ 5.00 серия 5.905-18-05. КРЕПЛЕНИЕ ГОРИЗОНТАЛЬНОГО ГАЗОПРОВОДА УКГ 5.00 УКГ 5.00 СЕРИЯ  5.905-18.05

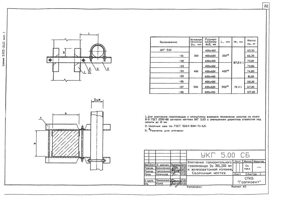
УГК 5.00 СБ Крепление горизонтального газопровода Ду 300 — 500 мм к железобетонной колонне

Крепления горизонтального газопровода к железобетонной колонне УКГ 5.00  применяются для крепления трубопроводов систем газоснабжения природным газом с избыточным давлением до 1,2 МПа (12 кгс/см2), для районов с расчетной температурой окружающей среды не менее -40°С.

Стандартно  крепления газопровода УКГ 5.00 изготавливаются из марки стали Ст.3, 20, 09Г2С.
Стандартное покрытие УКГ 5.00 — транспортировочный грунт ГФ-021.
Крепления газопровода УКГ 5.00 СБ изготавливаются в соответствии с чертежами серии 5.905-18.05 выпуск 1.

Пример обозначения крепления горизонтального газопровода Ду400 к железобетонной колонне 400х400:
Крепление газопровода Ду400 УКГ 5.00-04 с.5.905-18.05 выпуск

Описание

Обозначение Условный проход Ду, мм Размер коллоны АхВ, мм L, мм l, мм Масса ед., кг
УКГ 5.00 300 400х400 350⁺⁵ 87,5±1 65,3
УКГ 5.00-01 300 400х600 350⁺⁵ 87,5±1 66,3
УКГ 5.00-02 300 600х400 350⁺⁵ 87,5±1 73
УКГ 5.00-03 400 400х400 450⁺⁵ 87,5±1 73,86
УКГ 5.00-04 400 400х600 450⁺⁵ 87,5±1 74,85
УКГ 5.00-05 400 600х400 450⁺⁵ 87,5±1 81
УКГ 5.00-06 500 400х400 550⁺⁵ 70±1 116
УКГ 5.00-07 500 400х600 550⁺⁵ 70±1 117
УКГ 5.00-08 500 600х400 550⁺⁵ 70±1 127,8

1772623924752-659141289-kreplenie_gorizontalnogo_gazoprovoda_ukg_500

 

Подбор и поставка

Уточним наличие и подготовим КП по этой позиции

Поможем с подбором исполнения, проверим доступность на складе и отправим коммерческое предложение по выбранной позиции или аналогам.

Смотрите также

Другие подкатегории раздела

Опоры подвижные трубопроводов
подвижные скользящие опоры трубопроводов. Подбор,консультация,продажа со склада в Москве, доставка по РФ
Накладка Т94 серия 4.903-10 выпуск 1 на тройники усиливающая
Накладка Т94 серия 4.903-10 выпуск 1
Опоры водопровода в футляре
Опоры водопровода в футляре.Подбор,консультация,продажа со склада в Москве, доставка по РФ
Опоры 313.ТС-008.000 скользящие для трубопроводов в ППУ изоляции
Опоры 313.ТС-008.000 скользящие для трубопроводов в ППУ изоляции.Подбор,консультация,продажа со склада в Москве, доставка по РФ
Опоры ТД-1-487-1997.00.000 скользящие для трубопроводов в ППУ изоляции
Опоры ТД-1-487-1997.00.000 Подбор,консультация,продажа со склада в Москве, доставка по РФ
Серия 5.900-7 выпуск 3. Серия 5.900-7 выпуск 4
Серия 5.900-7 выпуск 3. Серия 5.900-7 выпуск 4.Подбор,консультация,продажа со склада в Москве, доставка по РФ
Опоры ГОСТ 30732-2006 скользящие опоры для стальных трубопроводов
Опоры ГОСТ 30732-2006/Подбор,консультация,продажа со склада в Москве, доставка по РФ
Хомуты сварные ГОСТ 24138-80
Хомуты сварные по ГОСТ 24138-80. Подбор,консультация,продажа со склада в Москве, доставка по РФ