УКГ 6.00 серия 5.905-18.05
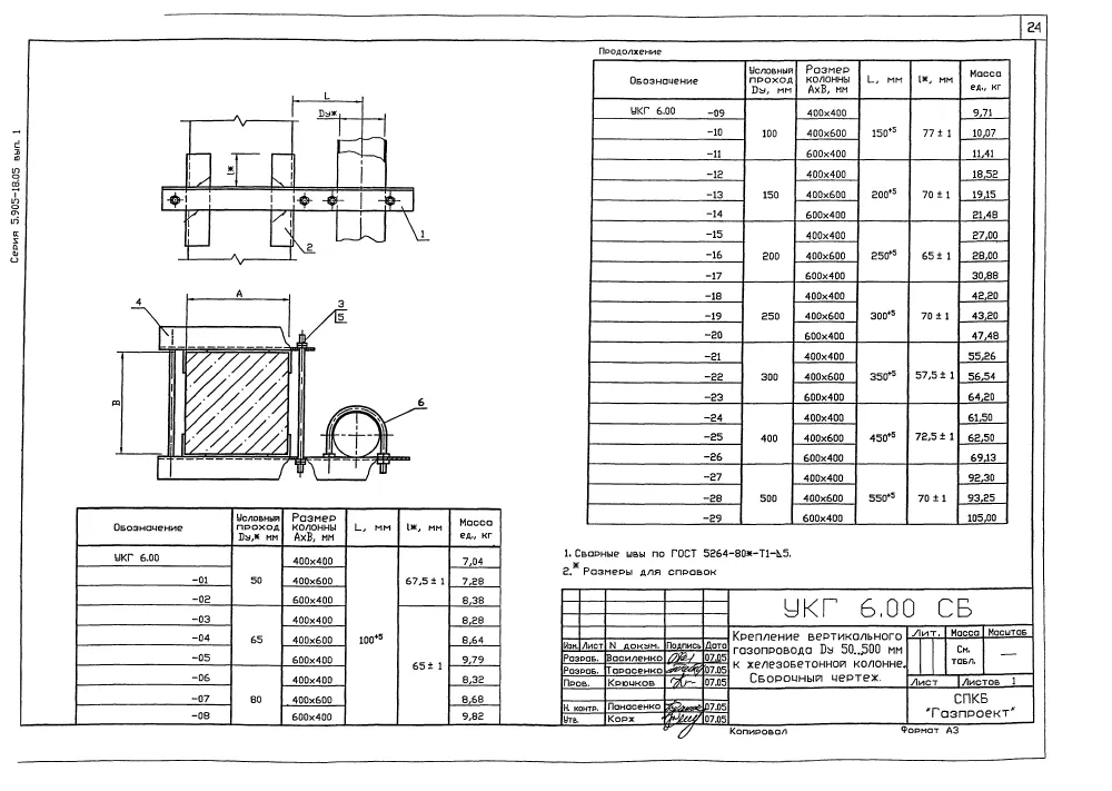
УГК 6.00 СБ. Крепление вертикального газопровода Ду 50 — 500 мм к железобетонной колонне УКГ 6.00 серия 5.905-18.05
УКГ 6.00 Крепления вертикального газопровода к железобетонной колонне.
Крепления УКГ 6.00 вертикального газопровода к железобетонной колонне Применяются для крепления трубопроводов систем газоснабжения природным газом с избыточным давлением до 1,2 МПа (12 кгс/см2), для районов с расчетной температурой окружающей среды не менее -40°С. Условный диаметр прокладываемых газопроводов Ду 50 — 500 мм.
Стандартно крепления газопровода УКГ 6.00 изготавливаются из марки стали Ст.3, 20, 09Г2С.
Стандартное покрытие УКГ 6.00 — транспортировочный грунт ГФ-021.
Крепления газопровода УКГ 6.00 СБ изготавливаются в соответствии с чертежами серии 5.905-18.05 выпуск 1.
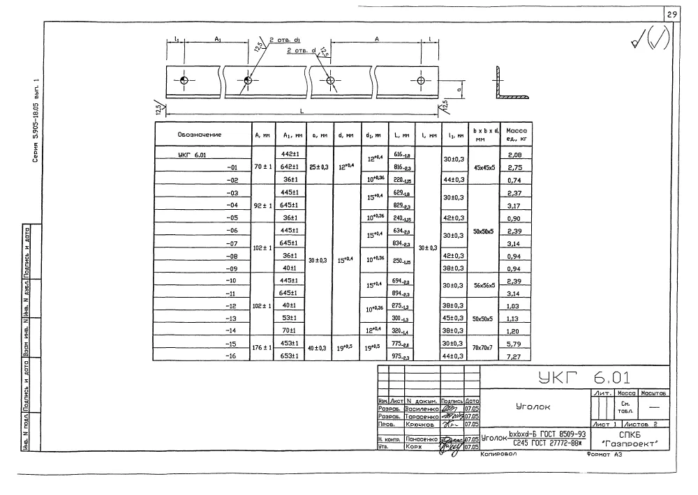
Описание
| Обозначение | Условный проход Ду, мм | Размер коллоны АхВ, мм | L, мм | l, мм | Масса ед., кг |
|---|---|---|---|---|---|
| УКГ 6.00 | 50 | 400х400 | 100⁺⁵ | 67,5±1 | 7,04 |
| УКГ 6.00-01 | 50 | 400х600 | 100⁺⁵ | 67,5±1 | 7,28 |
| УКГ 6.00-02 | 50 | 600х400 | 100⁺⁵ | 67,5±1 | 8,38 |
| УКГ 6.00-03 | 65 | 400х400 | 100⁺⁵ | 65±1 | 8,28 |
| УКГ 6.00-04 | 65 | 400х600 | 100⁺⁵ | 65±1 | 8,64 |
| УКГ 6.00-05 | 65 | 600х400 | 100⁺⁵ | 65±1 | 9,79 |
| УКГ 6.00-06 | 80 | 400х400 | 100⁺⁵ | 65±1 | 8,32 |
| УКГ 6.00-07 | 80 | 400х600 | 100⁺⁵ | 65±1 | 8,68 |
| УКГ 6.00-08 | 80 | 600х400 | 100⁺⁵ | 65±1 | 9,82 |
| УКГ 6.00-09 | 100 | 400х400 | 150⁺⁵ | 77±1 | 9,71 |
| УКГ 6.00-10 | 100 | 400х600 | 150⁺⁵ | 77±1 | 10,07 |
| УКГ 6.00-11 | 100 | 600х400 | 150⁺⁵ | 77±1 | 11,41 |
| УКГ 6.00-12 | 150 | 400х400 | 200⁺⁵ | 70±1 | 18,52 |
| УКГ 6.00-13 | 150 | 400х600 | 200⁺⁵ | 70±1 | 19,15 |
| УКГ 6.00-14 | 150 | 600х400 | 200⁺⁵ | 70±1 | 21,48 |
| УКГ 6.00-15 | 200 | 400х400 | 250⁺⁵ | 65±1 | 27 |
| УКГ 6.00-16 | 200 | 400х600 | 250⁺⁵ | 65±1 | 28 |
| УКГ 6.00-17 | 200 | 600х400 | 250⁺⁵ | 65±1 | 30,88 |
| УКГ 6.00-18 | 250 | 400х400 | 300⁺⁵ | 70±1 | 42,2 |
| УКГ 6.00-19 | 250 | 400х600 | 300⁺⁵ | 70±1 | 43,2 |
| УКГ 6.00-20 | 250 | 600х400 | 300⁺⁵ | 70±1 | 47,48 |
| УКГ 6.00-21 | 300 | 400х400 | 350⁺⁵ | 57,5±1 | 55,26 |
| УКГ 6.00-22 | 300 | 400х600 | 350⁺⁵ | 57,5±1 | 56,54 |
| УКГ 6.00-23 | 300 | 600х400 | 350⁺⁵ | 57,5±1 | 64,2 |
| УКГ 6.00-24 | 400 | 400х400 | 450⁺⁵ | 72,5±1 | 61,5 |
| УКГ 6.00-25 | 400 | 400х600 | 450⁺⁵ | 72,5±1 | 62,5 |
| УКГ 6.00-26 | 400 | 600х400 | 450⁺⁵ | 72,5±1 | 69,13 |
| УКГ 6.00-27 | 500 | 400х400 | 550⁺⁵ | 70±1 | 92,3 |
| УКГ 6.00-28 | 500 | 400х600 | 550⁺⁵ | 70±1 | 93,25 |
| УКГ 6.00-29 | 500 | 600х400 | 550⁺⁵ | 70±1 | 105 |
![]()
![]()
Подбор и поставка
Уточним наличие и подготовим КП по этой позиции
Поможем с подбором исполнения, проверим доступность на складе и отправим коммерческое предложение по выбранной позиции или аналогам.
Смотрите также
Другие подкатегории раздела
Опоры подвижные трубопроводов
подвижные скользящие опоры трубопроводов. Подбор,консультация,продажа со склада в Москве, доставка по РФ
Накладка Т94 серия 4.903-10 выпуск 1 на тройники усиливающая
Накладка Т94 серия 4.903-10 выпуск 1
Опоры водопровода в футляре
Опоры водопровода в футляре.Подбор,консультация,продажа со склада в Москве, доставка по РФ
Опоры 313.ТС-008.000 скользящие для трубопроводов в ППУ изоляции
Опоры 313.ТС-008.000 скользящие для трубопроводов в ППУ изоляции.Подбор,консультация,продажа со склада в Москве, доставка по РФ
Опоры ТД-1-487-1997.00.000 скользящие для трубопроводов в ППУ изоляции
Опоры ТД-1-487-1997.00.000 Подбор,консультация,продажа со склада в Москве, доставка по РФ
Серия 5.900-7 выпуск 3. Серия 5.900-7 выпуск 4
Серия 5.900-7 выпуск 3. Серия 5.900-7 выпуск 4.Подбор,консультация,продажа со склада в Москве, доставка по РФ
Опоры ГОСТ 30732-2006 скользящие опоры для стальных трубопроводов
Опоры ГОСТ 30732-2006/Подбор,консультация,продажа со склада в Москве, доставка по РФ
Хомуты сварные ГОСТ 24138-80
Хомуты сварные по ГОСТ 24138-80. Подбор,консультация,продажа со склада в Москве, доставка по РФ