Логотип АстронЭнерго

Опоры Т4.00 серия 4.903-10 выпуск 4 неподвижные лобовые двухупорные

Опоры  Т4.00 серия 4.903-10 выпуск 4 неподвижные лобовые двухупорные

Опора  Т4.00 серия 4.903-10 выпуск 4 неподвижная лобовая двухупорная Дн 108 — 1420 мм.

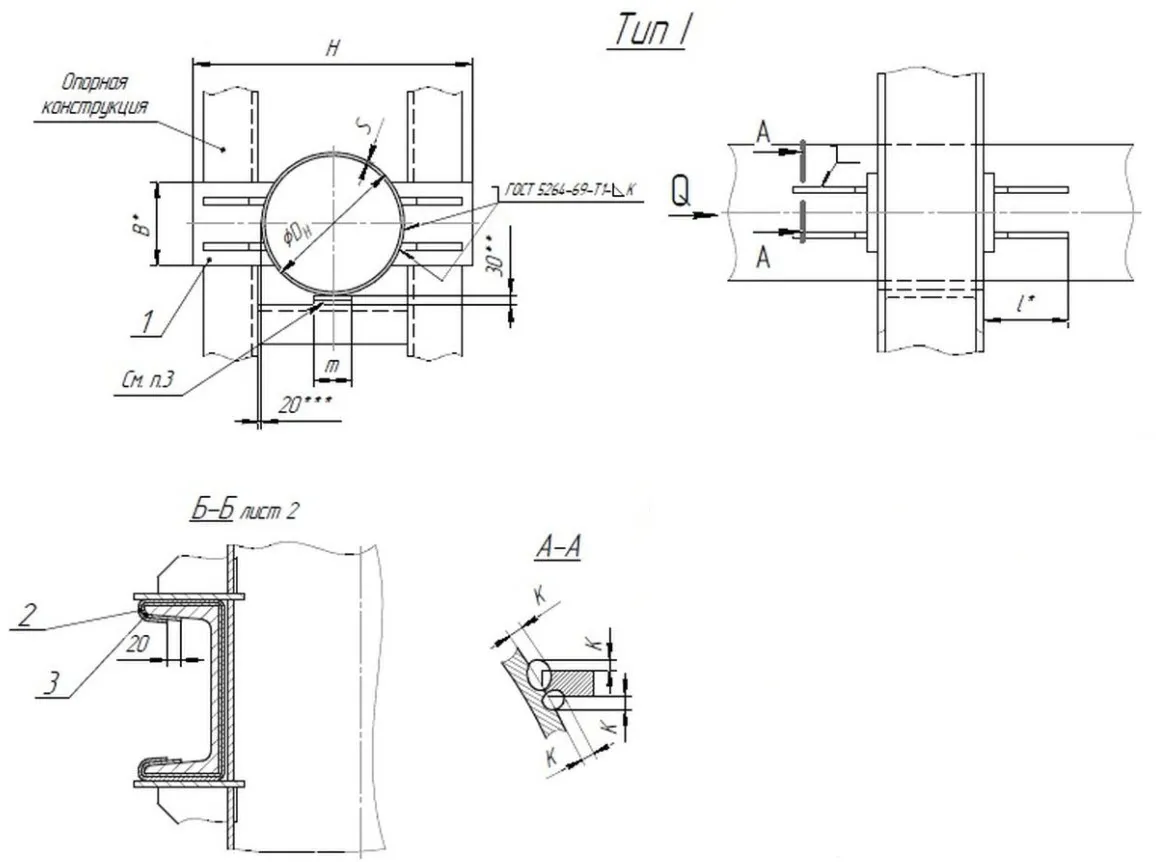
Опоры неподвижные лобовые Т4.00 предназначены для крепления стальных технологических трубопроводов различного назначения с наружным диаметром dн от 108 до 1420 мм. Изготавливаются в соответствии с ТУ-04698606-001-04 ''Опоры трубопроводов'', серия 4.903-10 выпуск 4.
Опора неподвижная Т4 состоит из 4 сварных упоров. Упоры привариваются к трубопроводу при монтаже.
Опора неподвижная лобовая двухупорная серия 4.903-10 выпуск 4.
Назначение – жесткое крепление трубопровода, не позволяющее перемещаться трубопроводу под действием нагрузок, образующихся при изменении температуры рабочей среды и других действующих на трубопровод факторах. Применяются при подземной и надземной прокладке трубопроводов тепловых сетей наружным диаметром от Дн 108 до Дн 1420 мм. Стандартно неподвижные лобовые опоры Т4 изготавливаются из марок стали — ст3,20,09Г2С.. Стандартное покрытие – транспортировочный грунт ГФ-021.

Пример условного обозначения опоры неподвижной лобовой Т4 для трубопровода 108: 

Опора 108-Т4.01  серия 4.903-10 выпуск 4

1769161866394-744267404-opora_t4_2_fill_250x2191769162651023-585854918-opora_t4_razmery_1

                     1770263339814-684525641-i

Подбор и поставка

Уточним наличие и подготовим КП по этой позиции

Поможем с подбором исполнения, проверим доступность на складе и отправим коммерческое предложение по выбранной позиции или аналогам.

Технические характеристики

Обозначение Наружный диаметр, dн Высота, мм Длина, мм Ширина, мм Масса, кг Цена руб. с НДС
Опора неподвижная Т4.01 108 230 110 70 4,24 720,0
Опора неподвижная Т4.02 133 260 80 4,4 740,0
Опора неподвижная Т4.03 159 320 112 90 6,6 980,0
Опора неподвижная Т4.04 194 360 100 6,88 1000,0
Опора неподвижная Т4.05 219 420 132 120 11,64 1370,0
Опора неподвижная Т4.06 273 480 11,28 1330,0
Опора неподвижная Т4.07 325 530 162 12,6 1450,0
Опора неподвижная Т4.08 377 580 140 14,16 1560,0
Опора неподвижная Т4.09 426 660 196 160 26,72 2880,0
Опора неподвижная Т4.10 480 720 180 26,92 2900,0
Опора неподвижная Т4.11 530 770 226 200 32,32 3390,0
Опора неподвижная Т4.12 630 870 240 33,68 3470,0
Опора неподвижная Т4.13 720 960 266 280 38,4 3890,0
Опора неподвижная Т4.14 820 1060 300 40 4030,0
Опора неподвижная Т4.15 920 1160 320 42,4 4240,0
Опора неподвижная Т4.16 1020 1260 286 360 48,8 4870,0
Опора неподвижная Т4.17 1220 1480 336 400 58,8 5870,0
Опора неподвижная Т4.18 1420 1680 500 66 6570,0

Смотрите также

Другие подкатегории раздела

Опоры подвижные трубопроводов
подвижные скользящие опоры трубопроводов. Подбор,консультация,продажа со склада в Москве, доставка по РФ
Накладка Т94 серия 4.903-10 выпуск 1 на тройники усиливающая
Накладка Т94 серия 4.903-10 выпуск 1
Крепления газопроводов УКГ Серия 5.905 - 18.05: Узлы и детали крепления газопроводов
Серия 5.905 - 18.05: Узлы и детали крепления газопроводов
Опоры водопровода в футляре
Опоры водопровода в футляре.Подбор,консультация,продажа со склада в Москве, доставка по РФ
Опоры 313.ТС-008.000 скользящие для трубопроводов в ППУ изоляции
Опоры 313.ТС-008.000 скользящие для трубопроводов в ППУ изоляции.Подбор,консультация,продажа со склада в Москве, доставка по РФ
Опоры ТД-1-487-1997.00.000 скользящие для трубопроводов в ППУ изоляции
Опоры ТД-1-487-1997.00.000 Подбор,консультация,продажа со склада в Москве, доставка по РФ
Серия 5.900-7 выпуск 3. Серия 5.900-7 выпуск 4
Серия 5.900-7 выпуск 3. Серия 5.900-7 выпуск 4.Подбор,консультация,продажа со склада в Москве, доставка по РФ
Опоры ГОСТ 30732-2006 скользящие опоры для стальных трубопроводов
Опоры ГОСТ 30732-2006/Подбор,консультация,продажа со склада в Москве, доставка по РФ