Логотип АстронЭнерго

УКГ 8.00 серия 5.905-18.05

 УКГ 8.00 серия 5.905-18.05

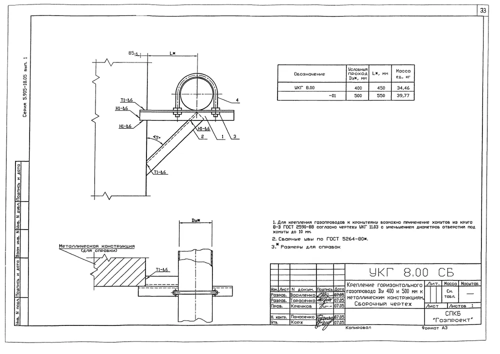
УГК 8.00 СБ. Крепление горизонтального газопровода Ду 400 и 500 мм к металлическим конструкциям УКГ 8.00 серия 5.905-18.05

УКГ 8.00 Крепления горизонтального газопровода к металлическим конструкциям.

 Применяются для крепления трубопроводов систем газоснабжения природным газом с избыточным давлением до 1,2 МПа (12 кгс/см2), для районов с расчетной температурой окружающей среды не менее -40°С. Условный диаметр прокладываемых газопроводов Ду 400 и 500 мм.

Стандартно  крепления газопровода УКГ 8.00 изготавливаются из марки стали Ст.3, 20, 09Г2С.
Стандартное покрытие УКГ 8.00 — транспортировочный грунт ГФ-021.
Крепления газопровода УКГ 8.00 СБ изготавливаются в соответствии с чертежами серии 5.905-18.05 выпуск 1.

Описание

Обозначение Условный проход Ду, мм L, мм Масса ед., кг
УКГ 8.00 400 450 34,46
УКГ 8.00-01 500 550 39,77

1772629895213-392750382-kreplenie_gorizontalnogo_gazoprovoda_ukg_800

1772629909411-386558610-kreplenie_gorizontalnogo_gazoprovoda_ukg_800_2

 

Подбор и поставка

Уточним наличие и подготовим КП по этой позиции

Поможем с подбором исполнения, проверим доступность на складе и отправим коммерческое предложение по выбранной позиции или аналогам.

Смотрите также

Другие подкатегории раздела

Опоры подвижные трубопроводов
подвижные скользящие опоры трубопроводов. Подбор,консультация,продажа со склада в Москве, доставка по РФ
Накладка Т94 серия 4.903-10 выпуск 1 на тройники усиливающая
Накладка Т94 серия 4.903-10 выпуск 1
Опоры водопровода в футляре
Опоры водопровода в футляре.Подбор,консультация,продажа со склада в Москве, доставка по РФ
Опоры 313.ТС-008.000 скользящие для трубопроводов в ППУ изоляции
Опоры 313.ТС-008.000 скользящие для трубопроводов в ППУ изоляции.Подбор,консультация,продажа со склада в Москве, доставка по РФ
Опоры ТД-1-487-1997.00.000 скользящие для трубопроводов в ППУ изоляции
Опоры ТД-1-487-1997.00.000 Подбор,консультация,продажа со склада в Москве, доставка по РФ
Серия 5.900-7 выпуск 3. Серия 5.900-7 выпуск 4
Серия 5.900-7 выпуск 3. Серия 5.900-7 выпуск 4.Подбор,консультация,продажа со склада в Москве, доставка по РФ
Опоры ГОСТ 30732-2006 скользящие опоры для стальных трубопроводов
Опоры ГОСТ 30732-2006/Подбор,консультация,продажа со склада в Москве, доставка по РФ
Хомуты сварные ГОСТ 24138-80
Хомуты сварные по ГОСТ 24138-80. Подбор,консультация,продажа со склада в Москве, доставка по РФ