УКГ 11.00 серия 5.905-18.05
УГК 11.00 СБ 5.905-18.05. Крепление газопровода на опоре из трубы УКГ 11.00 серия 5.905-18-05
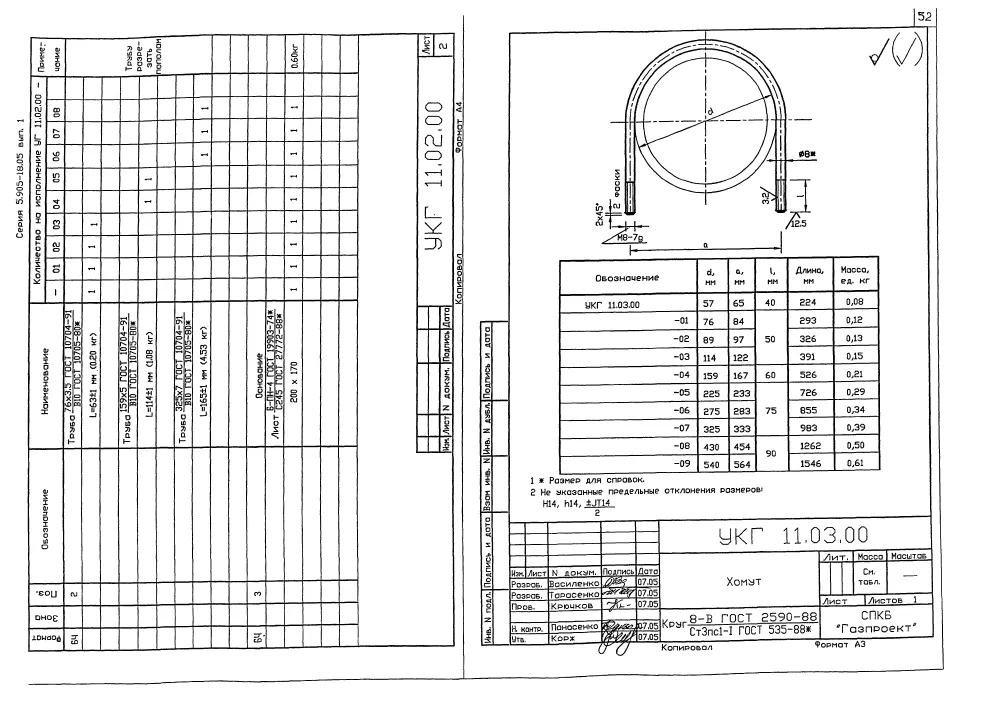
УКГ 11.00 Крепления газопровода на опоре из трубы. Применяются для крепления трубопроводов систем газоснабжения природным газом с избыточным давлением до 1,2 МПа (12 кгс/см2), для районов с расчетной температурой окружающей среды не менее -40°С. Условный диаметр прокладываемых газопроводов Ду 25 — 300 мм.
Крепления горизонтального газопровода УКГ 11.00 СБ изготавливаются в соответствии с чертежами серии 5.905-18.05 выпуск 1.
Крепление УКГ 11.00 предназначен для жесткой фиксации газопровода на опоре, выполненной из стальной трубы. Конструктивно он представляет собой хомут, собранный из двух полухомутов, которые стягиваются болтами.
Задача крепления УКГ11 — не только обхватить трубу, а воспринять и перераспределить:
Вертикальные нагрузки: вес самого газопровода, изоляции, транспортируемой среды.
Горизонтальные нагрузки: температурные деформации (самый мощный и постоянный фактор), ветровое давление, сейсмическую активность.
Динамические воздействия: вибрацию от работающего рядом оборудования или транспорта.
![]()
| Обозначение | Условный проход Ду, мм | Теоретическая масса | Тип опоры, рис. | Высота крепления h, м | Опора dхS, мм |
|---|---|---|---|---|---|
| УКГ 11.00 | до 40 | 4.53 кг. | 1 | 0.5 | 25х3,2 |
| УКГ 11.00 | до 40 | 5.72 кг. | 1 | 1.0 | 25х3,2 |
| УКГ 11.00 | до 40 | 8.59 кг. | 1 | 2.2 | 25х3,2 |
| УКГ 11.00 | до 40 | 9.31 кг. | 1 | 2.5 | 25х3,2 |
| УКГ 11.00-01 | 50 | 5.30 кг. | 1 | 0.5 | 32х3,2 |
| УКГ 11.00-01 | 50 | 6.84 кг. | 1 | 1.0 | 32х3,2 |
| УКГ 11.00-01 | 50 | 10.55 кг. | 1 | 2.2 | 32х3,2 |
| УКГ 11.00-01 | 50 | 11.48 кг. | 1 | 2.5 | 32х3,2 |
| УКГ 11.00-01 | 50 | 13.02 кг. | 1 | 3.0 | 32х3,2 |
| УКГ 11.00-02 | 65 | 6.25 кг. | 1 | 0.5 | 40х3,5 |
| УКГ 11.00-02 | 65 | 8.17 кг. | 1 | 1.0 | 40х3,5 |
| УКГ 11.00-02 | 65 | 12.78 кг. | 1 | 2.2 | 40х3,5 |
| УКГ 11.00-02 | 65 | 13.93 кг. | 1 | 2.5 | 40х3,5 |
| УКГ 11.00-02 | 65 | 15.85 кг. | 1 | 3.0 | 40х3,5 |
| УКГ 11.00-02 | 65 | 17.77 кг. | 1 | 3.5 | 40х3,5 |
| УКГ 11.00-03 | 80 | 7.28 кг. | 1 | 0.5 | 57х3,5 |
| УКГ 11.00-03 | 80 | 9.59 кг. | 1 | 1.0 | 57х3,5 |
| УКГ 11.00-03 | 80 | 15.13 кг. | 1 | 2.2 | 57х3,5 |
| УКГ 11.00-03 | 80 | 16.52 кг. | 1 | 2.5 | 57х3,5 |
| УКГ 11.00-03 | 80 | 18.83 кг. | 1 | 3.0 | 57х3,5 |
| УКГ 11.00-03 | 80 | 21.14 кг. | 1 | 3.5 | 57х3,5 |
| УКГ 11.00-04 | 100 | 8.28 кг. | 1 | 0.5 | 76х3,5 |
| УКГ 11.00-04 | 100 | 10.98 кг. | 1 | 1.0 | 76х3,5 |
| УКГ 11.00-04 | 100 | 17.46 кг. | 1 | 2.2 | 76х3,5 |
| УКГ 11.00-04 | 100 | 19.08 кг. | 1 | 2.5 | 76х3,5 |
| УКГ 11.00-04 | 100 | 21.78 кг. | 1 | 3.0 | 76х3,5 |
| УКГ 11.00-04 | 100 | 24.48 кг. | 1 | 3.5 | 76х3,5 |
| УКГ 11.00-04 | 100 | 27.18 кг. | 1 | 4.0 | 76х3,5 |
| УКГ 11.00-04 | 100 | 32.58 кг. | 1 | 5.0 | 76х3,5 |
| УКГ 11.00-04 | 100 | 39.72 кг. | 1 | 5.5 | 76х3,5 |
| УКГ 11.00-05 | 150 | 14.49 кг. | 1 | 0.5 | 108х4,0 |
| УКГ 11.00-05 | 150 | 19.92 кг. | 1 | 1.0 | 108х4,0 |
| УКГ 11.00-05 | 150 | 32.94 кг. | 1 | 2.2 | 108х4,0 |
| УКГ 11.00-05 | 150 | 36.20 кг. | 1 | 2.5 | 108х4,0 |
| УКГ 11.00-05 | 150 | 41.62 кг. | 1 | 3.0 | 108х4,0 |
| УКГ 11.00-05 | 150 | 47.04 кг. | 1 | 3.5 | 108х4,0 |
| УКГ 11.00-05 | 150 | 52.47 кг. | 1 | 4.0 | 108х4,0 |
| УКГ 11.00-05 | 150 | 63.32 кг. | 1 | 5.0 | 108х4,0 |
| УКГ 11.00-05 | 150 | 70.57 кг. | 1 | 5.5 | 108х4,0 |
| УКГ 11.00-06 | 200 | 23.79 кг. | 1 | 0.5 | 159х5,0 |
| УКГ 11.00-06 | 200 | 33.28 кг. | 1 | 1.0 | 159х5,0 |
| УКГ 11.00-06 | 200 | 56.07 кг. | 1 | 2.2 | 159х5,0 |
| УКГ 11.00-06 | 200 | 61.77 кг. | 1 | 2.5 | 159х5,0 |
| УКГ 11.00-06 | 200 | 71.26 кг. | 1 | 3.0 | 159х5,0 |
| УКГ 11.00-06 | 200 | 80.76 кг. | 1 | 3.5 | 159х5,0 |
| УКГ 11.00-06 | 200 | 90.25 кг. | 1 | 4.0 | 159х5,0 |
| УКГ 11.00-06 | 200 | 109.24 кг. | 1 | 5.0 | 159х5,0 |
| УКГ 11.00-06 | 200 | 121.14 кг. | 1 | 5.5 | 159х5,0 |
| УКГ 11.00-07 | 250 | 24.07 кг. | 1 | 0.5 | 159х5,0 |
| УКГ 11.00-07 | 250 | 33.56 кг. | 1 | 1.0 | 159х5,0 |
| УКГ 11.00-07 | 250 | 56.35 кг. | 1 | 2.2 | 159х5,0 |
| УКГ 11.00-07 | 250 | 62.05 кг. | 1 | 2.5 | 159х5,0 |
| УКГ 11.00-07 | 250 | 71.54 кг. | 1 | 3.0 | 159х5,0 |
| УКГ 11.00-07 | 250 | 81.04 кг. | 1 | 3.5 | 159х5,0 |
| УКГ 11.00-07 | 250 | 90.53 кг. | 1 | 4.0 | 159х5,0 |
| УКГ 11.00-07 | 250 | 109.52 кг. | 1 | 5.0 | 159х5,0 |
| УКГ 11.00-07 | 250 | 121.56 кг. | 1 | 5.5 | 159х5,0 |
| УКГ 11.00-08 | 300 | 24.30 кг. | 1 | 0.5 | 159х5,0 |
| УКГ 11.00-08 | 300 | 33.79 кг. | 1 | 1.0 | 159х5,0 |
| УКГ 11.00-08 | 300 | 56.58 кг. | 1 | 2.2 | 159х5,0 |
| УКГ 11.00-08 | 300 | 62.28 кг. | 1 | 2.5 | 159х5,0 |
| УКГ 11.00-08 | 300 | 71.77 кг. | 1 | 3.0 | 159х5,0 |
| УКГ 11.00-08 | 300 | 81.27 кг. | 1 | 3.5 | 159х5,0 |
| УКГ 11.00-08 | 300 | 90.80 кг. | 1 | 4.0 | 159х5,0 |
| УКГ 11.00-08 | 300 | 109.75 кг. | 1 | 5.0 | 159х5,0 |
| УКГ 11.00-08 | 300 | 121.90 кг. | 1 | 5.5 | 159х5,0 |
| УКГ 11.00-09 | до 40 | 3.43 кг. | 2 | 0.5 | 25х3,2 |
| УКГ 11.00-09 | до 40 | 4.62 кг. | 2 | 1.0 | 25х3,2 |
| УКГ 11.00-09 | до 40 | 7.49 кг. | 2 | 2.2 | 25х3,2 |
| УКГ 11.00-09 | до 40 | 8.21 кг. | 2 | 2.5 | 25х3,2 |
| УКГ 11.00-10 | 50 | 4.20 кг. | 2 | 0.5 | 32х3,2 |
| УКГ 11.00-10 | 50 | 5.74 кг. | 2 | 1.0 | 32х3,2 |
| УКГ 11.00-10 | 50 | 9.45 кг. | 2 | 2.2 | 32х3,2 |
| УКГ 11.00-10 | 50 | 10.38 кг. | 2 | 2.5 | 32х3,2 |
| УКГ 11.00-10 | 50 | 11.92 кг. | 2 | 3.0 | 32х3,2 |
| УКГ 11.00-11 | 65 | 5.02 кг. | 2 | 0.5 | 40х3,5 |
| УКГ 11.00-11 | 65 | 6.94 кг. | 2 | 1.0 | 40х3,5 |
| УКГ 11.00-11 | 65 | 11.55 кг. | 2 | 2.2 | 40х3,5 |
| УКГ 11.00-11 | 65 | 12.70 кг. | 2 | 2.5 | 40х3,5 |
| УКГ 11.00-11 | 65 | 14.62 кг. | 2 | 3.0 | 40х3,5 |
| УКГ 11.00-11 | 65 | 16.54 кг. | 2 | 3.5 | 40х3,5 |
| УКГ 11.00-12 | 80 | 5.88 кг. | 2 | 0.5 | 57х3,5 |
| УКГ 11.00-12 | 80 | 8.19 кг. | 2 | 1.0 | 57х3,5 |
| УКГ 11.00-12 | 80 | 13.74 кг. | 2 | 2.2 | 57х3,5 |
| УКГ 11.00-12 | 80 | 15.12 кг. | 2 | 2.5 | 57х3,5 |
| УКГ 11.00-12 | 80 | 17.43 кг. | 2 | 3.0 | 57х3,5 |
| УКГ 11.00-12 | 80 | 19.74 кг. | 2 | 3.5 | 57х3,5 |
| УКГ 11.00-13 | 100 | 7.62 кг. | 2 | 0.5 | 76х3,5 |
| УКГ 11.00-13 | 100 | 10.32 кг. | 2 | 1.0 | 76х3,5 |
| УКГ 11.00-13 | 100 | 16.80 кг. | 2 | 2.2 | 76х3,5 |
| УКГ 11.00-13 | 100 | 18.42 кг. | 2 | 2.5 | 76х3,5 |
| УКГ 11.00-13 | 100 | 21.12 кг. | 2 | 3.0 | 76х3,5 |
| УКГ 11.00-13 | 100 | 23.82 кг. | 2 | 3.5 | 76х3,5 |
| УКГ 11.00-13 | 100 | 26.52 кг. | 2 | 4.0 | 76х3,5 |
| УКГ 11.00-13 | 100 | 31.92 кг. | 2 | 5.0 | 76х3,5 |
| УКГ 11.00-13 | 100 | 35.62 кг. | 2 | 5.5 | 76х3,5 |
| УКГ 11.00-14 | 150 | 12.64 кг. | 2 | 0.5 | 108х4,0 |
| УКГ 11.00-14 | 150 | 18.06 кг. | 2 | 1.0 | 108х4,0 |
| УКГ 11.00-14 | 150 | 31.08 кг. | 2 | 2.2 | 108х4,0 |
| УКГ 11.00-14 | 150 | 34.34 кг. | 2 | 2.5 | 108х4,0 |
| УКГ 11.00-14 | 150 | 39.76 кг. | 2 | 3.0 | 108х4,0 |
| УКГ 11.00-14 | 150 | 45.19 кг. | 2 | 3.5 | 108х4,0 |
| УКГ 11.00-14 | 150 | 50.61 кг. | 2 | 4.0 | 108х4,0 |
| УКГ 11.00-14 | 150 | 61.46 кг. | 2 | 5.0 | 108х4,0 |
| УКГ 11.00-14 | 150 | 66.89 кг. | 2 | 5.5 | 108х4,0 |
| УКГ 11.00-15 | 200 | 24.04 кг. | 2 | 0.5 | 159х5,0 |
| УКГ 11.00-15 | 200 | 33.53 кг. | 2 | 1.0 | 159х5,0 |
| УКГ 11.00-15 | 200 | 56.32 кг. | 2 | 2.2 | 159х5,0 |
| УКГ 11.00-15 | 200 | 63.02 кг. | 2 | 2.5 | 159х5,0 |
| УКГ 11.00-15 | 200 | 71.51 кг. | 2 | 3.0 | 159х5,0 |
| УКГ 11.00-15 | 200 | 81.01 кг. | 2 | 3.5 | 159х5,0 |
| УКГ 11.00-15 | 200 | 90.05 кг. | 2 | 4.0 | 159х5,0 |
| УКГ 11.00-15 | 200 | 109.49 кг. | 2 | 5.0 | 159х5,0 |
| УКГ 11.00-15 | 200 | 118.99 кг. | 2 | 5.5 | 159х5,0 |
| УКГ 11.00-16 | 250 | 24.31 кг. | 2 | 0.5 | 159х5,0 |
| УКГ 11.00-16 | 250 | 33.80 кг. | 2 | 1.0 | 159х5,0 |
| УКГ 11.00-16 | 250 | 56.59 кг. | 2 | 2.2 | 159х5,0 |
| УКГ 11.00-16 | 250 | 62.29 кг. | 2 | 2.5 | 159х5,0 |
| УКГ 11.00-16 | 250 | 71.78 кг. | 2 | 3.0 | 159х5,0 |
| УКГ 11.00-16 | 250 | 81.28 кг. | 2 | 3.5 | 159х5,0 |
| УКГ 11.00-16 | 250 | 90.77 кг. | 2 | 4.0 | 159х5,0 |
| УКГ 11.00-16 | 250 | 109.76 кг. | 2 | 5.0 | 159х5,0 |
| УКГ 11.00-16 | 250 | 119.26 кг. | 2 | 5.5 | 159х5,0 |
| УКГ 11.00-17 | 300 | 24.31 кг. | 2 | 0.5 | 159х5,0 |
| УКГ 11.00-17 | 300 | 33.80 кг. | 2 | 1.0 | 159х5,0 |
| УКГ 11.00-17 | 300 | 56.59 кг. | 2 | 2.2 | 159х5,0 |
| УКГ 11.00-17 | 300 | 62.29 кг. | 2 | 2.5 | 159х5,0 |
| УКГ 11.00-17 | 300 | 71.78 кг. | 2 | 3.0 | 159х5,0 |
| УКГ 11.00-17 | 300 | 81.28 кг. | 2 | 3.5 | 159х5,0 |
| УКГ 11.00-17 | 300 | 90.77 кг. | 2 | 4.0 | 159х5,0 |
| УКГ 11.00-17 | 300 | 109.76 кг. | 2 | 5.0 | 159х5,0 |
| УКГ 11.00-17 | 300 | 119.26 кг. | 2 | 5.5 | 159х5,0 |
![]()
![]()
![]()
![]()
![]()
Уточним наличие и подготовим КП по этой позиции
Поможем с подбором исполнения, проверим доступность на складе и отправим коммерческое предложение по выбранной позиции или аналогам.