Логотип АстронЭнерго

УКГ 10.00 серия 5.905-18.05

 УКГ 10.00 серия 5.905-18.05

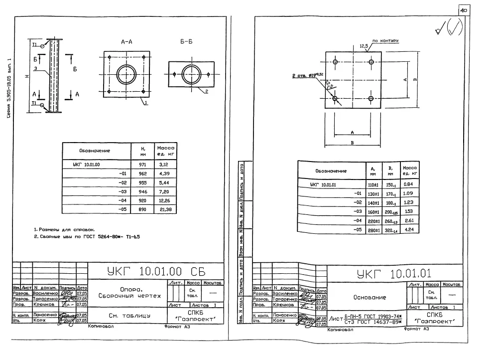
УГК 10.00 СБ 5.905-18.05  Крепление горизонтального газопровода Ду 50 — 200 мм на опоре из трубы внутри помещения.

УКГ 10.00 5.905-18.05 Крепления горизонтального газопровода на опоре из трубы. Применяются для крепления трубопроводов систем газоснабжения природным газом с избыточным давлением до 1,2 МПа (12 кгс/см2), для районов с расчетной температурой окружающей среды не менее -40°С. Условный диаметр прокладываемых газопроводов Ду 50 — 200 мм. 

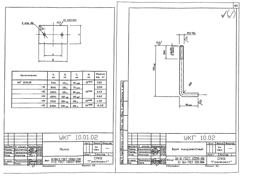
 Крепления горизонтального газопровода УКГ 10.00 СБ изготавливаются в соответствии с чертежами серии 5.905-18.05 выпуск 1.

Крепление УКГ 10.00 – представляет собой   хомутовое крепление.

Крепление горизонтального газопровода УКГ 10.00 по Серии 5.905-18-05 – это важный  узел, который выполняет три критически важные функции:

Фиксация и восприятие веса. Удерживает трубу в проектном положении.

Компенсация температурных деформаций. Позволяет трубе перемещаться вдоль оси при нагреве и охлаждении, предотвращая возникновение запредельных напряжений.

 Гашение вибраций. Снижает динамические нагрузки от работы оборудования, защищая сварные швы и арматуру.

 

Обозначение Условный проход Ду, мм Теоретическая масса Тип опоры, рис. Высота крепления до оси трубопровода, мм Высота опоры Н, мм Опора dхS, мм
УКГ 10.00 50 5.46 кг. 1 1000 971 32х3
УКГ 10.00-01 65 6.86 кг. 1 1000 962 45х3
УКГ 10.00-02 80 7.93 кг. 1 1000 955 57х3
УКГ 10.00-03 100 9.74 кг. 1 1000 946 76х3
УКГ 10.00-04 150 15.37 кг. 1 1000 920 108х5
УКГ 10.00-05 200 25.56 кг. 1 1000 890 159х4,5
УКГ 10.00-06 50 4.01 кг. 2 1000 971 32х3
УКГ 10.00-07 65 4.94 кг. 2 1000 962 45х3
УКГ 10.00-08 80 5.79 кг. 2 1000 955 57х3
УКГ 10.00-09 100 7.66 кг. 2 1000 946 76х3
УКГ 10.00-10 150 13.56 кг. 2 1000 920 108х5
УКГ 10.00-11 200 28.64 кг. 2 1000 890 159х4,5

 

Обозначение Условный проход Ду, мм Теоретическая масса Тип опоры, рис. Высота крепления до оси трубопровода, мм Высота опоры Н, мм Опора dхS, мм
УКГ 10.00 50 5.46 кг. 1 1000 971 32х3
УКГ 10.00-01 65 6.86 кг. 1 1000 962 45х3
УКГ 10.00-02 80 7.93 кг. 1 1000 955 57х3
УКГ 10.00-03 100 9.74 кг. 1 1000 946 76х3
УКГ 10.00-04 150 15.37 кг. 1 1000 920 108х5
УКГ 10.00-05 200 25.56 кг. 1 1000 890 159х4,5
УКГ 10.00-06 50 4.01 кг. 2 1000 971 32х3
УКГ 10.00-07 65 4.94 кг. 2 1000 962 45х3
УКГ 10.00-08 80 5.79 кг. 2 1000 955 57х3
УКГ 10.00-09 100 7.66 кг. 2 1000 946 76х3
УКГ 10.00-10 150 13.56 кг. 2 1000 920 108х5
УКГ 10.00-11 200 28.64 кг. 2 1000 890 159х4,5

1772632231849-956048564-kreplenie_gorizontalnogo_gazoprovoda_ukg_1000

1772632246375-941497966-kreplenie_gorizontalnogo_gazoprovoda_ukg_1000_2

1772632265400-890309907-kreplenie_gorizontalnogo_gazoprovoda_ukg_1000_3

1772632288691-334221891-kreplenie_gorizontalnogo_gazoprovoda_ukg_1000_4

 

Подбор и поставка

Уточним наличие и подготовим КП по этой позиции

Поможем с подбором исполнения, проверим доступность на складе и отправим коммерческое предложение по выбранной позиции или аналогам.

Смотрите также

Другие подкатегории раздела

Опоры подвижные трубопроводов
подвижные скользящие опоры трубопроводов. Подбор,консультация,продажа со склада в Москве, доставка по РФ
Накладка Т94 серия 4.903-10 выпуск 1 на тройники усиливающая
Накладка Т94 серия 4.903-10 выпуск 1
Опоры водопровода в футляре
Опоры водопровода в футляре.Подбор,консультация,продажа со склада в Москве, доставка по РФ
Опоры 313.ТС-008.000 скользящие для трубопроводов в ППУ изоляции
Опоры 313.ТС-008.000 скользящие для трубопроводов в ППУ изоляции.Подбор,консультация,продажа со склада в Москве, доставка по РФ
Опоры ТД-1-487-1997.00.000 скользящие для трубопроводов в ППУ изоляции
Опоры ТД-1-487-1997.00.000 Подбор,консультация,продажа со склада в Москве, доставка по РФ
Серия 5.900-7 выпуск 3. Серия 5.900-7 выпуск 4
Серия 5.900-7 выпуск 3. Серия 5.900-7 выпуск 4.Подбор,консультация,продажа со склада в Москве, доставка по РФ
Опоры ГОСТ 30732-2006 скользящие опоры для стальных трубопроводов
Опоры ГОСТ 30732-2006/Подбор,консультация,продажа со склада в Москве, доставка по РФ
Хомуты сварные ГОСТ 24138-80
Хомуты сварные по ГОСТ 24138-80. Подбор,консультация,продажа со склада в Москве, доставка по РФ