Логотип АстронЭнерго

УКГ 12.00 серия 5.905-18.05

 УКГ 12.00 серия  5.905-18.05

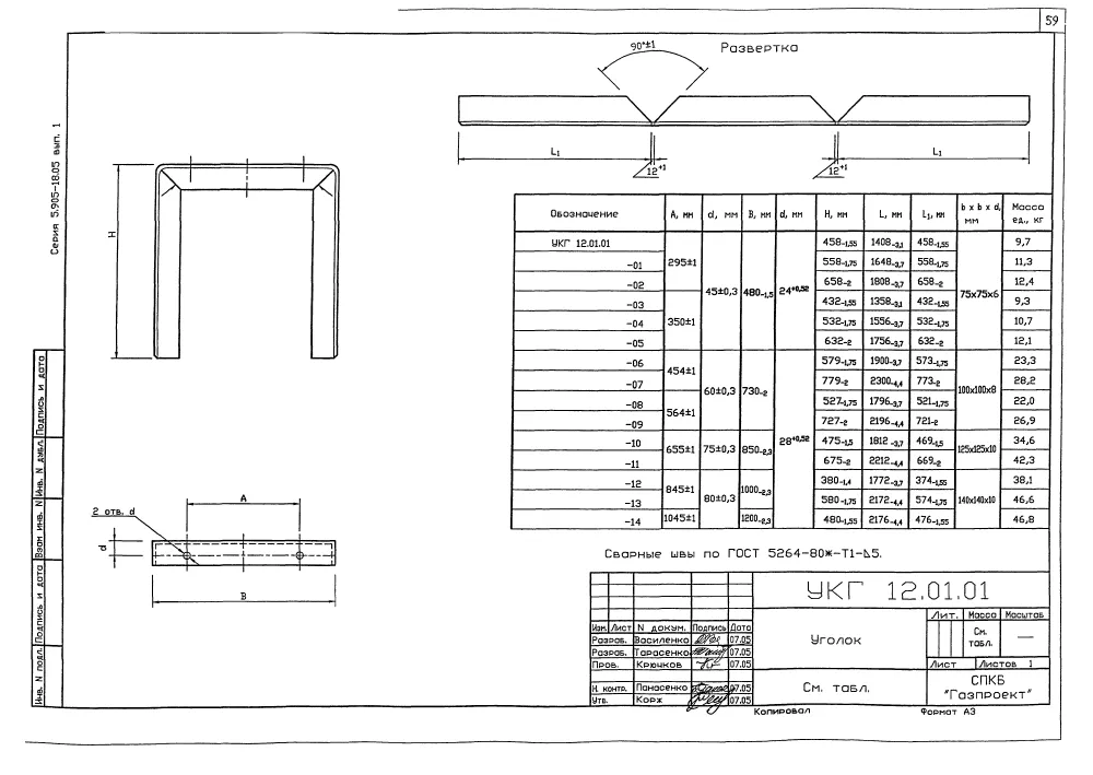
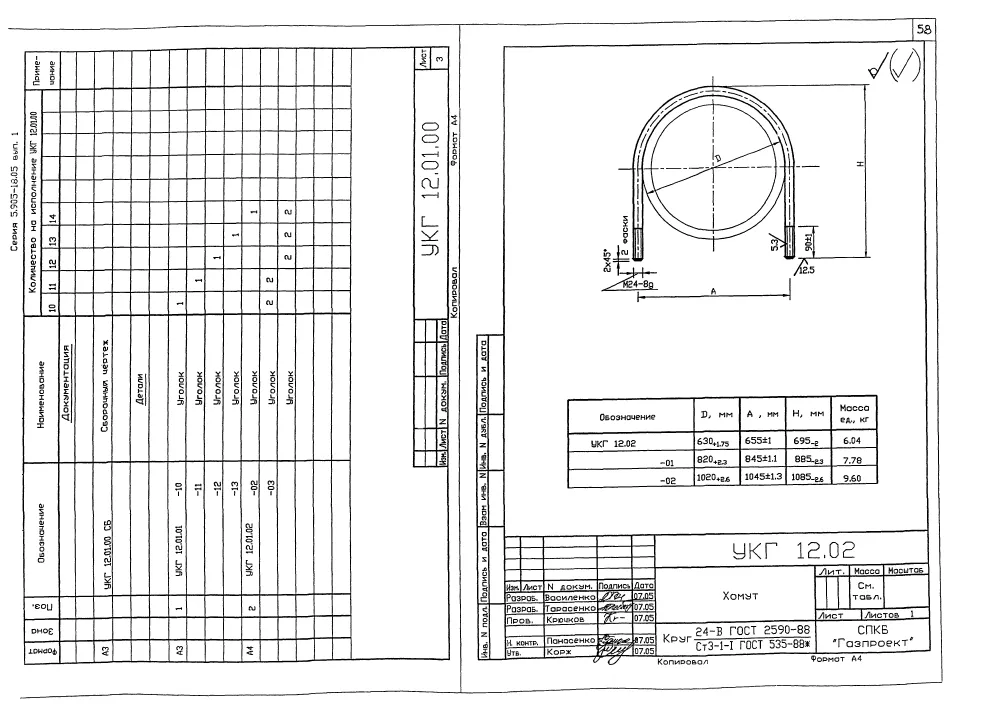
УГК 12.00 СБ серия 5.905-18.05. КРЕПЛЕНИЕ ГОРИЗОНТАЛЬНОГО ГАЗОПРОВОДА УКГ 12.00   

Применяются для крепления трубопроводов систем газоснабжения природным газом с избыточным давлением до 1,2 МПа (12 кгс/см2), для районов с расчетной температурой окружающей среды не менее -40°С. Условный диаметр прокладываемых газопроводов Ду 250 — 1000 мм.

Крепление горизонтального газопровода на отдельно стоящей опоре УКГ 12.00 – это  металлическая конструкция.

Ее основные задачи:

удерживание  веса газопровода, 

кокмпенсация температурных расширений,

осуществление вибрационных и ветровых нагрузок.

Крепление горизонтального газопровода на отдельно стоящей опоре УКГ 12.00 СБ изготавливаются в соответствии с чертежами серии 5.905-18.05 выпуск 1

Стандартно  крепления газопровода УКГ 12.00 изготавливаются из марки стали Ст.3, 20, 09Г2С.
Стандартное покрытие УКГ 12.00 — транспортировочный грунт ГФ-021.
Крепления газопровода УКГ 12.00 СБ изготавливаются в соответствии с чертежами серии 5.905-18.05 выпуск 1.

Описание

Обозначение Условный проход Ду, мм Н, мм Масса ед., кг
УКГ 12.00 250 600 19,28
УКГ 12.00-01 250 700 20,88
УКГ 12.00-02 250 800 22
УКГ 12.00-03 300 600 19,2
УКГ 12.00-04 300 700 20,65
УКГ 12.00-05 300 800 22
УКГ 12.00-06 400 800 37,17
УКГ 12.00-07 400 1000 42,07
УКГ 12.00-08 500 800 36,87
УКГ 12.00-09 500 1000 41,77
УКГ 12.00-10 600 800 52,65
УКГ 12.00-11 600 1000 60,35
УКГ 12.00-12 800 800 58,45
УКГ 12.00-13 800 1000 66,95
УКГ 12.00-14 1000 1000 69,87

  1772632557491-533911428-kreplenie_gorizontalnogo_gazoprovoda_ukg_1200

1772632573971-216014302-kreplenie_gorizontalnogo_gazoprovoda_ukg_1200_2

1772632638639-206337297-kreplenie_gorizontalnogo_gazoprovoda_ukg_1200_3

1772632660895-201733860-kreplenie_gorizontalnogo_gazoprovoda_ukg_1200_4

1772632791915-121581721-kreplenie_gorizontalnogo_gazoprovoda_ukg_1200_5

 

Подбор и поставка

Уточним наличие и подготовим КП по этой позиции

Поможем с подбором исполнения, проверим доступность на складе и отправим коммерческое предложение по выбранной позиции или аналогам.

Смотрите также

Другие подкатегории раздела

Опоры подвижные трубопроводов
подвижные скользящие опоры трубопроводов. Подбор,консультация,продажа со склада в Москве, доставка по РФ
Накладка Т94 серия 4.903-10 выпуск 1 на тройники усиливающая
Накладка Т94 серия 4.903-10 выпуск 1
Опоры водопровода в футляре
Опоры водопровода в футляре.Подбор,консультация,продажа со склада в Москве, доставка по РФ
Опоры 313.ТС-008.000 скользящие для трубопроводов в ППУ изоляции
Опоры 313.ТС-008.000 скользящие для трубопроводов в ППУ изоляции.Подбор,консультация,продажа со склада в Москве, доставка по РФ
Опоры ТД-1-487-1997.00.000 скользящие для трубопроводов в ППУ изоляции
Опоры ТД-1-487-1997.00.000 Подбор,консультация,продажа со склада в Москве, доставка по РФ
Серия 5.900-7 выпуск 3. Серия 5.900-7 выпуск 4
Серия 5.900-7 выпуск 3. Серия 5.900-7 выпуск 4.Подбор,консультация,продажа со склада в Москве, доставка по РФ
Опоры ГОСТ 30732-2006 скользящие опоры для стальных трубопроводов
Опоры ГОСТ 30732-2006/Подбор,консультация,продажа со склада в Москве, доставка по РФ
Хомуты сварные ГОСТ 24138-80
Хомуты сварные по ГОСТ 24138-80. Подбор,консультация,продажа со склада в Москве, доставка по РФ