Логотип АстронЭнерго

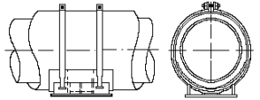
Опоры НТС 65-06

Опоры НТС 65-06

НТС 65-06 «Опорные конструкции трубопроводов тепловых сетей»

Выпуск 1 данного стандарта распространяется на подвижные и направляющие опоры для канальной прокладки теплопроводов Ду 100 - 1000 мм в ППУ изоляции в полиэтиленовой оболочке.

Опоры по НТС 65-06 выпуск 1 применяются для канальной прокладки трубопроводных систем теплосетей. Они представляют собой подвижные и направляющие устройства, позволяющие трубам совершать перемещения на заданные расстояния, возникающие при тепловых деформациях. Предназначены для труб в ППУ изоляции в полиэтиленовой оболочке, рассчитаны на восприятие вертикальной и горизонтальной нагрузки.

1. Опоры НПО по НТС 65-06 выпуск 1 направляющие подвижные в ППУ изоляции Ду 100 - 1000 мм

Направляющие опоры НПО предусматривают продольные смещения теплопроводов внутри самой опоры. Направляющая опора НПО разработана для применения на теплопроводах в ППУ изоляции таким образом, чтобы в осевом направлении усиленная полиэтиленовая оболочка скользила по металлу (ложе) опоры (пара трения полиэтилен по металлу). Перемещение поперек оси трубопровода не допускается, опора заанкерена в бетонное основание.

2. Опоры ПО по НТС 65-06 выпуск 1 подвижные в ППУ изоляции Ду 100 - 1000 мм

Подвижные опоры ПО применяются при боковых перемещениях труб. В целях снижения коэффициента трения трубопроводов (до 0,2) на трущиеся поверхности наносится графитовая смазка.. Подвижная опора ПО в осевом направлении работает как направляющая опора (пара трения полиэтилен по металлу), а в направлении перпендикулярном оси трубы, металлическая опора вместе с трубой по направляющим перемещается по металлу закладной детали заанкеренной в бетонное основание (пара трения металл по металлу).

Выпуск 2 данного стандарта применяются для надземной прокладки теплопроводов Ду 50-1400 в пенополиурентановой (ППУ) изоляции в металлической оболочке.

3. Опора подвижная ОПМ  НТС 65-06 Выпуск 2

Опоры ОПМ по альбому НТС 65-06 Выпуск 2 подвижные (скользящие) для трубопроводов в ППУ изоляции бесканальной прокладки Ду 50 - 1400 мм

Опоры ОПМ НТС 65-06 Выпуск 2 подвижные предназначены для теплопроводов в ППУ изоляции : для привязки к конкретным проектам на прокладку бесканальным способом теплопроводов с пенополиуретановой изоляцией в оцинкованной стали.

Опоры ОПМ предназначены для компенсации сдвига горизонтальных и вертикальных нагрузок трубопровода. Опора состоит из хомута и п-образного сваренного корпуса.

Опоры ОПМ 0,5-14 изготавливаются по чертежам ПП41-96-40
Опоры ОПМ альбом НТС 65-06 выпуск 2

Подбор и поставка

Поможем подобрать исполнение и типоразмер

Уточним различия между позициями в этом разделе, проверим наличие на складе и подготовим коммерческое предложение под ваш запрос.

Опора НПО-57 НТС 65-06 выпуск 1

Опора НПО-57 Ду оболочки=125 НТС 65-06 v направляющая подвижная для труб в ППУ изоляции

Опора НПО-76 НТС 65-06 выпуск 1

Опора НПО-76 Ду оболочки=180 НТС 65-06 выпуск 1 направляющая подвижная для труб в ППУ изоляции

Опора НПО-89 Ду оболочки=160 НТС 65-06 выпуск 1

Опора НПО-89 Ду оболочки=160 НТС 65-06 выпуск 1 направляющая подвижная для труб в ППУ изоляции

Опора НПО-89 Ду оболочки=180 НТС 65-06 выпуск 1

Опора НПО-89 Ду оболочки=180 НТС 65-06 выпуск 1 направляющая подвижная для труб в ППУ изоляции

Опора НПО-108 НТС 65-06 выпуск 1 Ду оболочки=180

Опора НПО-108 Ду оболочки=180 НТС 65-06 выпуск 1 направляющая подвижная для труб в ППУ изоляции

Опора НПО-125 НТС 65-06 выпуск 1 Ду оболочки=225

Опора НПО-125 Ду оболочки=225 НТС 65-06 выпуск 1 направляющая подвижная для труб в ППУ изоляции

Опора НПО-150 НТС 65-06 выпуск 1 Ду оболочки=250

Опора НПО-150 Ду оболочки=250 НТС 65-06 выпуск 1 направляющая подвижная для труб в ППУ изоляции

Опора НПО-200 НТС 65-06 выпуск 1 Ду оболочки=315

Опора НПО-200 Ду оболочки=315 НТС 65-06 выпуск 1 направляющая подвижная для труб в ППУ изоляции

Опора НПО-250 НТС 65-06 выпуск 1 Ду оболочки=400

Опора НПО-250 Ду оболочки=400 НТС 65-06 выпуск 1 направляющая подвижная для труб в ППУ изоляции

Опора НПО-300 НТС 65-06 выпуск 1 Ду оболочки=450

Опора НПО-300 Ду оболочки=450 НТС 65-06 выпуск 1 направляющая подвижная для труб в ППУ изоляции

Опора НПО-350 НТС 65-06 выпуск 1 Ду оболочки=560

Опора НПО-350 Ду оболочки=560 НТС 65-06 выпуск 1 направляющая подвижная для труб в ППУ изоляции

Опора НПО-400 НТС 65-06 выпуск 1 Ду оболочки=560

Опора НПО-400 Ду оболочки=560 НТС 65-06 выпуск 1 направляющая подвижная для труб в ППУ изоляции

Опора НПО-500 НТС 65-06 выпуск 1 Ду оболочки=710

Опора НПО-500 Ду оболочки=710 НТС 65-06 выпуск 1 направляющая подвижная для труб в ППУ изоляции

Опора НПО-600 НТС 65-06 выпуск 1 Ду оболочки=800

Опора НПО-600 Ду оболочки=800 НТС 65-06 выпуск 1 направляющая подвижная для труб в ППУ изоляции

Опора НПО-700 НТС 65-06 выпуск 1 Ду оболочки=900

Опора НПО-700 Ду оболочки=900 НТС 65-06 выпуск 1 направляющая подвижная для труб в ППУ изоляции

Опора НПО-800 НТС 65-06 выпуск 1 Ду оболочки=1000

Опора НПО-800 Ду оболочки=1000 НТС 65-06 выпуск 1 направляющая подвижная для труб в ППУ изоляции

Опора НПО-900 НТС 65-06 выпуск 1 Ду оболочки=1100

Опора НПО-900 Ду оболочки=1100 НТС 65-06 выпуск 1 направляющая подвижная для труб в ППУ изоляции

Опора НПО-1000 НТС 65-06 выпуск 1 Ду оболочки=1200

Опора НПО-1000 Ду оболочки=1200 НТС 65-06 выпуск 1 направляющая подвижная для труб в ППУ изоляции

Опора НПО-1220 НТС 65-06 выпуск 1 Ду оболочки=1425

Опора НПО-1220 Ду оболочки=1425 НТС 65-06 выпуск 1 направляющая подвижная для труб в ППУ изоляции

Опора ПО-57 НТС 65-06 выпуск 1  Ду оболочки=133

Опора ПО-57 Ду оболочки=133 НТС 65-06 выпуск 1 подвижная для труб в ППУ изоляции

Опора ПО-89 НТС 65-06 выпуск 1  Ду оболочки=189

Опора ПО-89 Ду оболочки=160 НТС 65-06 выпуск 1 подвижная для труб в ППУ изоляции

Опора ПО-108 НТС 65-06 выпуск 1  Ду оболочки=189

Опора ПО-108 Ду оболочки=189 НТС 65-06 выпуск 1 подвижная для труб в ППУ изоляции

Опора ПО-133 НТС 65-06 выпуск 1  Ду оболочки=225

Опора ПО-133 Ду оболочки=225 НТС 65-06 выпуск 1 подвижная для труб в ППУ изоляции

Опора ПО-159 НТС 65-06 выпуск 1  Ду оболочки=273

Опора ПО-159 Ду оболочки=273 НТС 65-06 выпуск 1 подвижная для труб в ППУ изоляции

Опора ПО-219 НТС 65-06 выпуск 1  Ду оболочки=315

Опора ПО-219 Ду оболочки=315 НТС 65-06 выпуск 1 подвижная для труб в ППУ изоляции

Опора ПО-325 НТС 65-06 выпуск 1  Ду оболочки=457

Опора ПО-325 Ду оболочки=457 НТС 65-06 выпуск 1 подвижная для труб в ППУ изоляции

Опора ПО-273 НТС 65-06 выпуск 1  Ду оболочки=426

Опора ПО-273 Ду оболочки=426 НТС 65-06 выпуск 1 подвижная для труб в ППУ изоляции

Опора ПО-357 НТС 65-06 выпуск 1  Ду оболочки=530

Опора ПО-357 Ду оболочки=530 НТС 65-06 выпуск 1 подвижная для труб в ППУ изоляции

Опора ПО-426 НТС 65-06 выпуск 1 Ду оболочки=560

Опора ПО-426 Ду оболочки=560 НТС 65-06 выпуск 1 подвижная для труб в ППУ изоляции

Опора ПО-530 НТС 65-06 выпуск 1  Ду оболочки=710

Опора ПО-530 Ду оболочки=710 НТС 65-06 выпуск 1 подвижная для труб в ППУ изоляции

Опора ПО-630 НТС 65-06 выпуск 1 Ду оболочки=820

Опора ПО-630 Ду оболочки=820 НТС 65-06 выпуск 1 подвижная для труб в ППУ изоляции

Опора ПО-720 НТС 65-06 выпуск 1 Ду оболочки=920

Опора ПО-720 Ду оболочки=920 НТС 65-06 выпуск 1 подвижная для труб в ППУ изоляции

Опора ПО-820 НТС 65-06 выпуск 1  Ду оболочки=1020

Опора ПО-820 Ду оболочки=1020 НТС 65-06 выпуск 1 подвижная для труб в ППУ изоляции

Опора ПО-920 НТС 65-06 выпуск 1  Ду оболочки=1100

Опора ПО-920 Ду оболочки=1100 НТС 65-06 выпуск 1 подвижная для труб в ППУ изоляции

Опора ПО-1020 НТС 65-06 выпуск 1  Ду оболочки=1220

Опора ПО-1020 Ду оболочки=1220 НТС 65-06 выпуск 1 подвижная для труб в ППУ изоляции

Опора ОПМ-0,5   НТС 65-06 выпуск 2  Ду 57

Опора ОПМ-0,5 Ду 57 НТС 65-06 выпуск 2 подвижная для трубопроводов в ППУ изоляции бесканальной прокладки

Опора ОПМ-0,7 НТС 65-06 выпуск 2  Ду 76

Опора ОПМ-0,7 Ду 76 НТС 65-06 выпуск 2 подвижная для трубопроводов в ППУ изоляции бесканальной прокладки

Опора ОПМ-0,8   НТС 65-06 выпуск 2  Ду 89

Опора ОПМ-0,8 Ду 89 НТС 65-06 выпуск 2 подвижная для трубопроводов в ППУ изоляции бесканальной прокладки

Опора ОПМ-1 НТС 65-06 выпуск 2 Ду 108

Опора ОПМ-1 Ду 108 НТС 65-06 выпуск 2 подвижная для трубопроводов в ППУ изоляции бесканальной прокладки

Опора ОПМ-1,25 НТС 65-06 выпуск 2 Ду 133

Опора ОПМ-1,25 Ду 133 НТС 65-06 выпуск 2 подвижная для трубопроводов в ППУ изоляции бесканальной прокладки

Опора ОПМ-1,5 НТС 65-06 выпуск 2  Ду 159

Опора ОПМ-1,5 Ду 159 НТС 65-06 выпуск 2 подвижная для трубопроводов в ППУ изоляции бесканальной прокладки

Опора ОПМ-2 НТС 65-06 выпуск 2 Ду 219

Опора ОПМ-2 Ду 219 НТС 65-06 выпуск 2 подвижная для трубопроводов в ППУ изоляции бесканальной прокладки

Опора ОПМ-2,5   НТС 65-06 выпуск 2 Ду 273

Опора ОПМ-2,5 Ду 273 НТС 65-06 выпуск 2 подвижная для трубопроводов в ППУ изоляции бесканальной прокладки

Опора ОПМ-3 НТС 65-06 выпуск 2 Ду 325

Опора ОПМ-3 Ду 325 НТС 65-06 выпуск 2 подвижная для трубопроводов в ППУ изоляции бесканальной прокладки

Опора ОПМ-4   НТС 65-06 выпуск 2  Ду 426

Опора ОПМ-4 Ду 426 НТС 65-06 выпуск 2 подвижная для трубопроводов в ППУ изоляции бесканальной прокладки

Опора ОПМ-5 НТС 65-06 выпуск 2  Ду 530

Опора ОПМ-5 Ду 530 НТС 65-06 выпуск 2 подвижная для трубопроводов в ППУ изоляции бесканальной прокладки

Опора ОПМ-6 НТС 65-06 выпуск 2  Ду 630

Опора ОПМ-6 Ду 630 НТС 65-06 выпуск 2 подвижная для трубопроводов в ППУ изоляции бесканальной прокладки

Опора ОПМ-7 НТС 65-06 выпуск 2  Ду 720 

Опора ОПМ-7 Ду 720 НТС 65-06 выпуск 2 подвижная для трубопроводов в ППУ изоляции бесканальной прокладки

Опора ОПМ-8 НТС 65-06 выпуск 2 Ду 820 

Опора ОПМ-8 Ду 820 НТС 65-06 выпуск 2 подвижная для трубопроводов в ППУ изоляции бесканальной прокладки

Опора ОПМ-9 НТС 65-06 выпуск 2  Ду 920

Опора ОПМ-9 Ду 920 НТС 65-06 выпуск 2 подвижная для трубопроводов в ППУ изоляции бесканальной прокладки

Опора ОПМ-10 НТС 65-06 выпуск 2 Ду 1020

Опора ОПМ-10 Ду 1020 НТС 65-06 выпуск 2 подвижная для трубопроводов в ППУ изоляции бесканальной прокладки

Опора ОПМ-12 НТС 65-06 выпуск 2 Ду 1220 

Опора ОПМ-12 Ду 1220 НТС 65-06 выпуск 2 подвижная для трубопроводов в ППУ изоляции бесканальной прокладки

Опора ОПМ-14 НТС 65-06 выпуск 2  Ду 1420 

Опора ОПМ-14 Ду 1420 НТС 65-06 выпуск 2 подвижная для трубопроводов в ППУ изоляции бесканальной прокладки

Другие подкатегории раздела

Опоры подвижные трубопроводов
подвижные скользящие опоры трубопроводов. Подбор,консультация,продажа со склада в Москве, доставка по РФ
Накладка Т94 серия 4.903-10 выпуск 1 на тройники усиливающая
Накладка Т94 серия 4.903-10 выпуск 1
Крепления газопроводов УКГ Серия 5.905 - 18.05: Узлы и детали крепления газопроводов
Серия 5.905 - 18.05: Узлы и детали крепления газопроводов
Опоры водопровода в футляре
Опоры водопровода в футляре.Подбор,консультация,продажа со склада в Москве, доставка по РФ
Опоры 313.ТС-008.000 скользящие для трубопроводов в ППУ изоляции
Опоры 313.ТС-008.000 скользящие для трубопроводов в ППУ изоляции.Подбор,консультация,продажа со склада в Москве, доставка по РФ
Опоры ТД-1-487-1997.00.000 скользящие для трубопроводов в ППУ изоляции
Опоры ТД-1-487-1997.00.000 Подбор,консультация,продажа со склада в Москве, доставка по РФ
Серия 5.900-7 выпуск 3. Серия 5.900-7 выпуск 4
Серия 5.900-7 выпуск 3. Серия 5.900-7 выпуск 4.Подбор,консультация,продажа со склада в Москве, доставка по РФ
Опоры ГОСТ 30732-2006 скользящие опоры для стальных трубопроводов
Опоры ГОСТ 30732-2006/Подбор,консультация,продажа со склада в Москве, доставка по РФ