Логотип АстронЭнерго

Опоры Т12.00 серия 4.903-10 выпуск 4 неподвижные хомутовые

Опоры  Т12.00 серия 4.903-10 выпуск 4 неподвижные хомутовые

Опоры Т12  серия 4.903-10 выпуск 4 хомутовые неподвижные Дн 57 - 377 мм

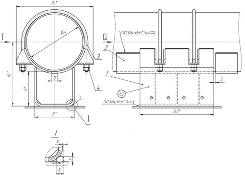
Опоры неподвижные хомутовые Т12.00 предназначены для крепления стальных технологических трубопроводов различного назначения с наружным диаметром от 57 до 377мм. Изготавливаются в соответствии с ТУ-04698606-001-04 'Опоры трубопроводов', серия 4.903-10 выпуск 4.
Опора Т12.00 неподвижная хомутовая состоит из гнутых хомутов, штампованного корпуса с приваренной подушкой, ушами, ребрами жесткости и упоров. Упоры привариваются к трубопроводу при монтаже.

Опоры неподвижные хомутового типа вида Т12 применяются при монтаже различных типов технологических трубопроводов. Использование данного типа опор зарекомендовало себя с различными типами трубопроводов, но чаще всего такие крепления используются с трубами на теплосетях и других коммуникациях ЖКХ. Использование данного типа опор помогает обезопасить трубу от неблагоприятного внешнего воздействия различных нагрузок и сил. В частности, данный тип опор компенсирует вибрацию, сдвиги в результате нагрузки на трубу осевого и бокового типа. Эти особенности работы опоры позволяют обеспечить целостность трубы на всех участках трубопровода с максимальной протяженностью. Опоры Т12 могут применяться как с трубопроводами с подземным типом прокладки, так и с надземными коммуникациями.
Пример условного обозначения опоры неподвижной хомутовой Т12 для трубопровода Ду57 высотой 100 мм: 
Опора неподвижная Т12.01 Ду 57
Опора Т 12.00 неподвижная серия 4.903-10 выпуск 4 состоит из: Корпус — 1 шт. Упор — 4 шт. Хомут — 2 шт. Гайка — 8 шт.

1769174229129-570424793-opora_t12_razmery_fill_500x358

 

Подбор и поставка

Уточним наличие и подготовим КП по этой позиции

Поможем с подбором исполнения, проверим доступность на складе и отправим коммерческое предложение по выбранной позиции или аналогам.

Технические характеристики

Обозначение Наружный диаметр, dн Высота, мм Длина, мм Ширина, мм Масса, кг Цена руб. с НДС
Опора неподвижная Т12.01 57 130 340 90 3,8 1330,0
Опора неподвижная Т12.02 180 4,7 1650,0
Опора неподвижная Т12.03 230 5,6 1950,0
Опора неподвижная Т12.04 76 138 108 4,1 1440,0
Опора неподвижная Т12.05 188 4,9 1715,0
Опора неподвижная Т12.06 238 6 2000,0
Опора неподвижная Т12.07 89 145 128 4,3 1500,0
Опора неподвижная Т12.08 195 5,2 1820,0
Опора неподвижная Т12.09 245 6,2 2150,0
Опора неподвижная Т12.10 108 154 150 5,8 2030,0
Опора неподвижная Т12.11 204 6,9 2410,0
Опора неподвижная Т12.12 254 8 договорн.
Опора неподвижная Т12.13 133 165 170 6,8 договорн.
Опора неподвижная Т12.14 215 7,8 договорн.
Опора неподвижная Т12.15 265 8,9 договорн.
Опора неподвижная Т12.16 159 180 200 7,5 договорн.
Опора неподвижная Т12.17 230 8,5 договорн.
Опора неподвижная Т12.18 280 9,5 договорн.
Опора неподвижная Т12.19 194 197 250 21,4 договорн.
Опора неподвижная Т 12.20 247 24,1 договорн.
Опора неподвижная Т 12.21 297 27,1 договорн.
Опора неподвижная Т12.22 219 210 275 22,3 договорн.
Опора неподвижная Т12.23 260 24,9 договорн.
Опора неподвижная Т12.24 310 27,6 договорн.
Опора неподвижная Т12.25 273 237 340 25,9 договорн.
Опора неподвижная Т12.26 287 28,9 договорн.
Опора неподвижная Т12.27 337 31,5 договорн.
Опора неподвижная Т12.28 325 263 395 30,4 договорн.
Опора неподвижная Т 12.29 313 33,3 договорн.
Опора неподвижная Т12.30 363 36 договорн.
Опора неподвижная Т12.31 377 289 450 33,5 договорн.
Опора Т12.32 неподвижная 339 36,2 договорн.
Опора Т12.33 неподвижная 389 38,8 договорн.

Смотрите также

Другие подкатегории раздела

Опоры подвижные трубопроводов
подвижные скользящие опоры трубопроводов. Подбор,консультация,продажа со склада в Москве, доставка по РФ
Накладка Т94 серия 4.903-10 выпуск 1 на тройники усиливающая
Накладка Т94 серия 4.903-10 выпуск 1
Крепления газопроводов УКГ Серия 5.905 - 18.05: Узлы и детали крепления газопроводов
Серия 5.905 - 18.05: Узлы и детали крепления газопроводов
Опоры водопровода в футляре
Опоры водопровода в футляре.Подбор,консультация,продажа со склада в Москве, доставка по РФ
Опоры 313.ТС-008.000 скользящие для трубопроводов в ППУ изоляции
Опоры 313.ТС-008.000 скользящие для трубопроводов в ППУ изоляции.Подбор,консультация,продажа со склада в Москве, доставка по РФ
Опоры ТД-1-487-1997.00.000 скользящие для трубопроводов в ППУ изоляции
Опоры ТД-1-487-1997.00.000 Подбор,консультация,продажа со склада в Москве, доставка по РФ
Серия 5.900-7 выпуск 3. Серия 5.900-7 выпуск 4
Серия 5.900-7 выпуск 3. Серия 5.900-7 выпуск 4.Подбор,консультация,продажа со склада в Москве, доставка по РФ
Опоры ГОСТ 30732-2006 скользящие опоры для стальных трубопроводов
Опоры ГОСТ 30732-2006/Подбор,консультация,продажа со склада в Москве, доставка по РФ