Логотип АстронЭнерго

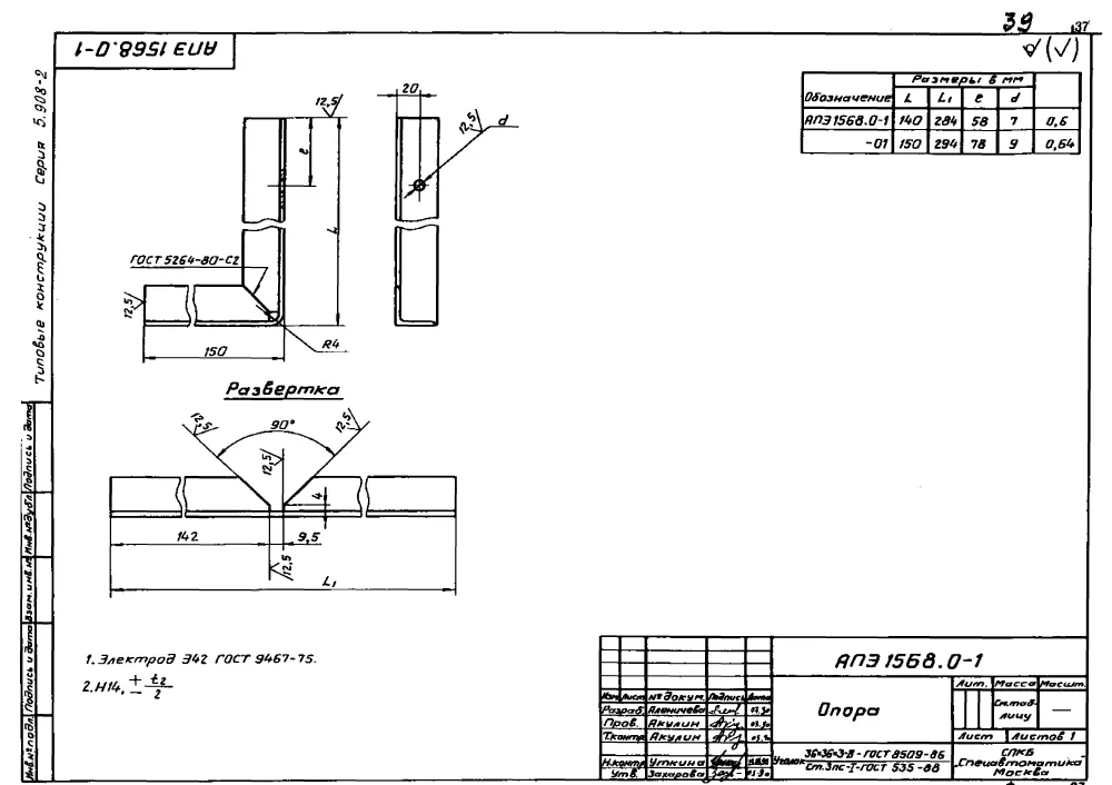
Опоры АПЭ 1568.0 серии 5.908-2

Опоры АПЭ 1568.0 серии 5.908-2

Опора АПЭ 1568.0 СБ серии 5.908-2 для крепления труб Дн 18-30 мм, 32-48 мм в подполье

Серия 5.908-2 - это стандарт типовых узлов крепления трубопроводов автоматического пожаротушения, рассчитанные на одновременное действие вертикальных и горизонтальных нагрузок.

Опоры АПЭ 1568.0 СБ серии 5.908-2 применяются для крепления трубопроводов автоматических установок пожаротушения АУП (АУПТ).

Диаметр прокладываемых трубопроводов Дн 18 – 48 мм.

Стандартно опоры АПЭ 1568.0 СБ серия 5.908-2  изготавливаются из марок стали сталь 3, 20, 09Г2С. Стандартное покрытие – транспортировочный грунт ГФ-021.

Опоры АПЭ 1568.0 для крепления труб в подполье изготавливаются в соответствии с чертежами АПЭ 1568.0 СБ и техническими требованиями серии 5.908-2.

     

Обозначение Дн, мм L, мм L1, мм Масса, кг
АПЭ 1568.0 18...30 140,0 100,0 0,70
АПЭ 1568.0-01 32...48 150,0 100,0 0,85

 

1773127873707-527767431-opora_dlya_krepleniya_truboprovodov_ape_15680

1773127888561-446079686-opora_dlya_krepleniya_truboprovodov_ape_15680_2

 

 

Подбор и поставка

Уточним наличие и подготовим КП по этой позиции

Поможем с подбором исполнения, проверим доступность на складе и отправим коммерческое предложение по выбранной позиции или аналогам.

Смотрите также

Другие подкатегории раздела

Опоры подвижные трубопроводов
подвижные скользящие опоры трубопроводов. Подбор,консультация,продажа со склада в Москве, доставка по РФ
Накладка Т94 серия 4.903-10 выпуск 1 на тройники усиливающая
Накладка Т94 серия 4.903-10 выпуск 1
Крепления газопроводов УКГ Серия 5.905 - 18.05: Узлы и детали крепления газопроводов
Серия 5.905 - 18.05: Узлы и детали крепления газопроводов
Опоры водопровода в футляре
Опоры водопровода в футляре.Подбор,консультация,продажа со склада в Москве, доставка по РФ
Опоры 313.ТС-008.000 скользящие для трубопроводов в ППУ изоляции
Опоры 313.ТС-008.000 скользящие для трубопроводов в ППУ изоляции.Подбор,консультация,продажа со склада в Москве, доставка по РФ
Опоры ТД-1-487-1997.00.000 скользящие для трубопроводов в ППУ изоляции
Опоры ТД-1-487-1997.00.000 Подбор,консультация,продажа со склада в Москве, доставка по РФ
Серия 5.900-7 выпуск 3. Серия 5.900-7 выпуск 4
Серия 5.900-7 выпуск 3. Серия 5.900-7 выпуск 4.Подбор,консультация,продажа со склада в Москве, доставка по РФ
Опоры ГОСТ 30732-2006 скользящие опоры для стальных трубопроводов
Опоры ГОСТ 30732-2006/Подбор,консультация,продажа со склада в Москве, доставка по РФ