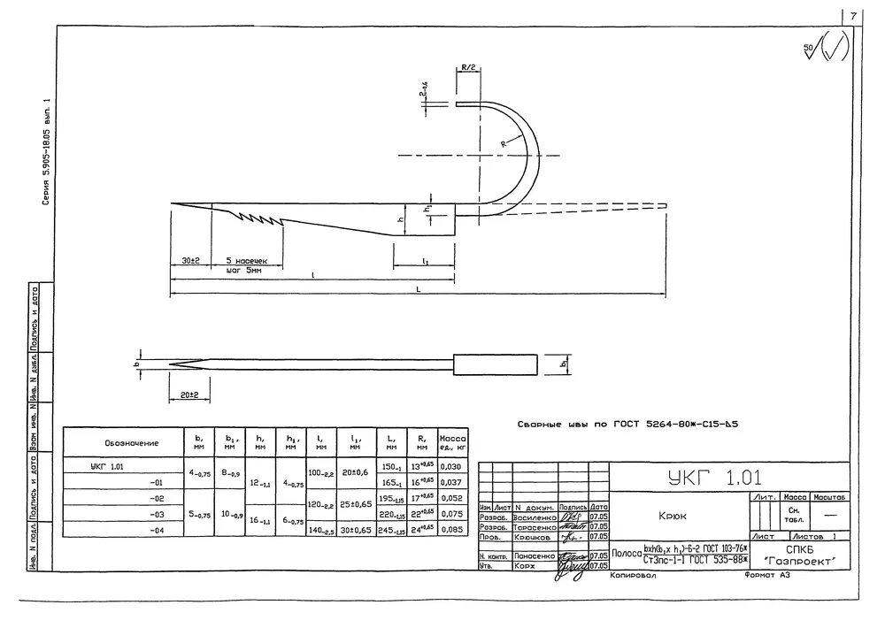
УКГ 1.00 серия 5.905 - 18.05
УКГ 1.00.Крепление газопровода Ду 15-40 мм к кирпичной или деревянной стене УКГ 1.00. Серия 5.905 - 18-05
УКГ 1.00 Крепления газопровода к кирпичной или деревянной стене.
Применяются для крепления трубопроводов систем газоснабжения природным газом с избыточным давлением до 1,2 МПа (12 кгс/см2), для районов с расчетной температурой окружающей среды не менее -40°С. Условный диаметр прокладываемых газопроводов Ду 15 — 40 мм.
Стандартно крепления газопровода УКГ 1.00 изготавливаются из марки стали Ст.3, 20, 09Г2С.
Стандартное покрытие УКГ 1.00 — транспортировочный грунт ГФ-021.
Крепления газопровода УКГ 1.00 СБ изготавливаются в соответствии с чертежами серии 5.905-18.05 выпуск 1.
Пример обозначения крепления газопровода с условным проходом Ду40 мм к кирпичной стене:
Крепление УКГ 1.00-04 с.ерия 5.905-18.05 вып.1

![]()
![]()
Описание
| Обозначение | Условный проход Ду, мм | L, мм | Масса ед., кг |
|---|---|---|---|
| УКГ 1.00 | 15 | 26±1 | 0,03 |
| УКГ 1.00-01 | 20 | 28±1 | 0,037 |
| УКГ 1.00-02 | 25 | 33±1 | 0,052 |
| УКГ 1.00-03 | 32 | 36±1 | 0,075 |
| УКГ 1.00-04 | 40 | 42±1 | 0,085 |
Уточним наличие и подготовим КП по этой позиции
Поможем с подбором исполнения, проверим доступность на складе и отправим коммерческое предложение по выбранной позиции или аналогам.