Логотип АстронЭнерго

Опора ОП-9 ПП16-11

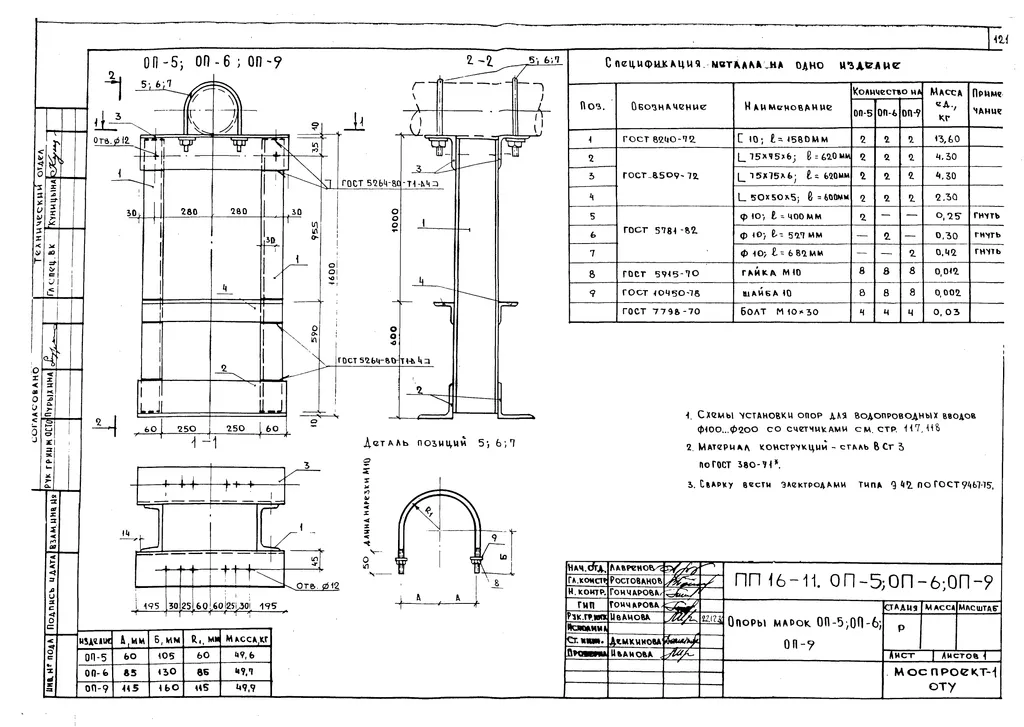
Опора ОП-9 ПП16-11 напольная консольная водомерных узлов Ду200
Опоры серия ОП ПП16-11 напольные консольная для крепления водомерных узлов
опора ОП-9 ПП16-11 напольная консольная  однорядная Ду200
Опора ОП-9 Моспроект ПП16-11 предназначена для крепления трубопроводов водомерных узлов и водопроводных вводов диаметром DN200 систем водоснабжения,
пожаротушения, противопожарных водопроводов и прочих систем технологических трубопроводов коммерческих, складских, производственных и жилых зданий и сооружений.
Опоры ОП-9 изготавливаются согласно альбому рабочих чертежей Моспроект ПП16-11 и 
соответствуют требованиям АО Мосводоканал.
Вес опоры ОП-9 ПП 16-11  -  49.9 кг  Опора ОП-9 ПП16-11 Ду 200 состоит:
Опора: 1 шт.
Хомут: 2 шт. Ду 200
Гайки: 4 шт.
Шайбы: 4 шт.
Анкеры: 4 шт.
Опоры  в обязательном порядке поставляются в комплекте с  Паспортом, Сертификатом соответствия и
сертификатом на материалы.

1769529803490-157294682-______5.6.9

Подбор и поставка

Уточним наличие и подготовим КП по этой позиции

Поможем с подбором исполнения, проверим доступность на складе и отправим коммерческое предложение по выбранной позиции или аналогам.

Смотрите также

Другие подкатегории раздела

Опоры подвижные трубопроводов
подвижные скользящие опоры трубопроводов. Подбор,консультация,продажа со склада в Москве, доставка по РФ
Накладка Т94 серия 4.903-10 выпуск 1 на тройники усиливающая
Накладка Т94 серия 4.903-10 выпуск 1
Крепления газопроводов УКГ Серия 5.905 - 18.05: Узлы и детали крепления газопроводов
Серия 5.905 - 18.05: Узлы и детали крепления газопроводов
Опоры водопровода в футляре
Опоры водопровода в футляре.Подбор,консультация,продажа со склада в Москве, доставка по РФ
Опоры 313.ТС-008.000 скользящие для трубопроводов в ППУ изоляции
Опоры 313.ТС-008.000 скользящие для трубопроводов в ППУ изоляции.Подбор,консультация,продажа со склада в Москве, доставка по РФ
Опоры ТД-1-487-1997.00.000 скользящие для трубопроводов в ППУ изоляции
Опоры ТД-1-487-1997.00.000 Подбор,консультация,продажа со склада в Москве, доставка по РФ
Серия 5.900-7 выпуск 3. Серия 5.900-7 выпуск 4
Серия 5.900-7 выпуск 3. Серия 5.900-7 выпуск 4.Подбор,консультация,продажа со склада в Москве, доставка по РФ
Опоры ГОСТ 30732-2006 скользящие опоры для стальных трубопроводов
Опоры ГОСТ 30732-2006/Подбор,консультация,продажа со склада в Москве, доставка по РФ