Опоры АПЭ 1412.0 серия 5.908-1
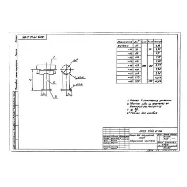
Опоры АПЭ 1412.0 СБ серия 5.908-1 для крепления труб Дн 57-325 мм
Серия 5.908-1 - это стандарт типовых узлов крепления трубопроводов автоматического пожаротушения, рассчитанные на одновременное действие вертикальных и горизонтальных нагрузок.
Опоры АПЭ 1412.0 применяются для крепления к металлоконструкциям трубопроводов установок автоматического пожаротушения (АУПТ). Наружный диаметр прокладываемых трубопроводов Дн 57 – 325 мм.
Стандартно опоры АПЭ серия 5.908-1 изготавливаются из марок сталь 3, 20, 09Г2С. Стандартное покрытие – транспортировочный грунт ГФ-021.
Опоры АПЭ 1412.0 СБ изготавливаются в соответствии с чертежами типовых конструкций серии 5.908-1
| Обозначение | Наружный диаметр трубопровода Дн, мм | Теоритическая масса | Высота опоры до оси трубопровода L, мм (уточняется проектом) | Размер основания L, мм | Диаметр отверстий d, мм |
| АПЭ 1412.0 | 57 | 4.34 кг. | 500 | 150 | 18 |
| АПЭ 1412.0-01 | 76 | 4.45 кг. | 500 | 150 | 18 |
| АПЭ 1412.0-02 | 89 | 4.50 кг. | 500 | 150 | 18 |
| АПЭ 1412.0-03 | 108 | 7.15 кг. | 500 | 200 | 18 |
| АПЭ 1412.0-04 | 114 | 7.86 кг. | 500 | 200 | 18 |
| АПЭ 1412.0-05 | 133 | 8.02 кг. | 500 | 200 | 18 |
| АПЭ 1412.0-06 | 159 | 8.08 кг. | 500 | 200 | 18 |
| АПЭ 1412.0-07 | 219 | 9.26 кг. | 500 | 200 | 18 |
| АПЭ 1412.0-08 | 273 | 12.69 кг. | 500 | 200 | 18 |
| АПЭ 1412.0-09 | 325 | 14.62 кг. | 500 | 250 | 22 |


Уточним наличие и подготовим КП по этой позиции
Поможем с подбором исполнения, проверим доступность на складе и отправим коммерческое предложение по выбранной позиции или аналогам.