Логотип АстронЭнерго

УКГ 15.00 серия 5.905-18-05

 УКГ 15.00 серия 5.905-18-05

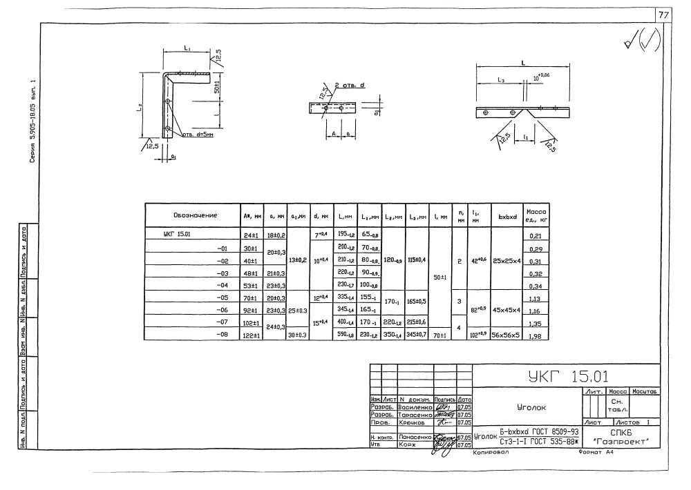
УГК 15.00 СБ серия 5.905-18.05 Крепление газопровода Ду 15 — 100 мм к панельным и блочным стенам.

 Крепления газопровода к панельным и блочным стенам УКГ 15.00 применяются для крепления трубопроводов систем газоснабжения природным газом с избыточным давлением до 1,2 МПа (12 кгс/см2), для районов с расчетной температурой окружающей среды не менее -40°С. Условный диаметр прокладываемых газопроводов Ду 15 — 100 мм.

Стандартно  крепления газопровода УКГ 15.00 изготавливаются из марки стали Ст.3, 20, 09Г2С.
Стандартное покрытие УКГ 15.00 — транспортировочный грунт ГФ-021.

Крепления газопровода УКГ 15.00 СБ изготавливаются в соответствии с чертежами серии 5.905-18.05 выпуск 1.

Описание

Обозначение Условный проход Ду, мм L, мм Масса ед., кг
УКГ 15.00 15 35 0,33
УКГ 15.00-01 20 35 0,38
УКГ 15.00-02 25 40 0,4
УКГ 15.00-03 32 45 0,42
УКГ 15.00-04 40 50 0,45
УКГ 15.00-05 50 100 1,34
УКГ 15.00-06 65 100 1,5
УКГ 15.00-07 80 100 1,72
УКГ 15.00-08 100 150 2,4

1772686619245-821536995-kreplenie_gazoprovoda_ukg_1500

1772686637221-257458649-kreplenie_gazoprovoda_ukg_1500_2

Подбор и поставка

Уточним наличие и подготовим КП по этой позиции

Поможем с подбором исполнения, проверим доступность на складе и отправим коммерческое предложение по выбранной позиции или аналогам.

Смотрите также

Другие подкатегории раздела

Опоры подвижные трубопроводов
подвижные скользящие опоры трубопроводов. Подбор,консультация,продажа со склада в Москве, доставка по РФ
Накладка Т94 серия 4.903-10 выпуск 1 на тройники усиливающая
Накладка Т94 серия 4.903-10 выпуск 1
Опоры водопровода в футляре
Опоры водопровода в футляре.Подбор,консультация,продажа со склада в Москве, доставка по РФ
Опоры 313.ТС-008.000 скользящие для трубопроводов в ППУ изоляции
Опоры 313.ТС-008.000 скользящие для трубопроводов в ППУ изоляции.Подбор,консультация,продажа со склада в Москве, доставка по РФ
Опоры ТД-1-487-1997.00.000 скользящие для трубопроводов в ППУ изоляции
Опоры ТД-1-487-1997.00.000 Подбор,консультация,продажа со склада в Москве, доставка по РФ
Серия 5.900-7 выпуск 3. Серия 5.900-7 выпуск 4
Серия 5.900-7 выпуск 3. Серия 5.900-7 выпуск 4.Подбор,консультация,продажа со склада в Москве, доставка по РФ
Опоры ГОСТ 30732-2006 скользящие опоры для стальных трубопроводов
Опоры ГОСТ 30732-2006/Подбор,консультация,продажа со склада в Москве, доставка по РФ
Хомуты сварные ГОСТ 24138-80
Хомуты сварные по ГОСТ 24138-80. Подбор,консультация,продажа со склада в Москве, доставка по РФ