Логотип АстронЭнерго

Блоки ОСТ 34-10-612-93

Блоки ОСТ 34-10-612-93

Блоки катковые пружинные для опор трубопроводов ТЭС и АЭС и коробов пылегазовоздуховодов ТЭС ОСТ 34-10-612-93

Блоки катковые пружинные.

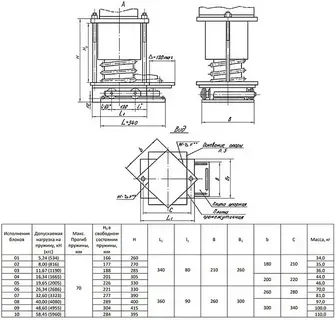
Блоки катковые пружинные. Назначение – крепление, в комплекте с опорами, трубопроводов ТЭС и АЭС, и коробов пылегазовоздухозаборников ТЭС на заданной высоте, позволяющее перемещаться трубопроводу по оси под действием нагрузок, образующихся при изменении температуры рабочей среды и других действующих на трубопровод факторах. В отличие от скользящих опор производят меньшее трение. Блоки катковые пружинные имеют в составе пружинный блок компенсирующий вертикальные нагрузки и предотвращающий повреждения трубопровода. В случаях применения блоков под трубопровод с тепловым перемещением вверх – гайки при монтаже удаляются.

Блоки катковые пружинные изготавливаются в соответствии с чертежами Л8-144.000 по техническим требованиям ТУ34-42-10380-04 (ТУ34-42-10380-83)

1770470739938-80296283-i__3_        1770470762278-692570018-i

Наименование

Допускаемая нагрузка на пружину, кН (кгс)

Максимальный прогиб пружины, мм

Высота блока, мм

Масса блока, кг

1

01 ОСТ 34-10-612-93

5,24 (537)

70

260

34,0

2

02 ОСТ 34-10-612-93

8,00 (816)

70

270

35,0

3

03 ОСТ 34-10-612-93

11,67 (1190)

70

285

36,0

4

04 ОСТ 34-10-612-93

16,34 (1666)

70

309

44,0

5

05 ОСТ 34-10-612-93

19,66 (2006)

70

330

45,0

6

06 ОСТ 34-10-612-93

26,34 (2686)

70

350

70,0

7

07 ОСТ 34-10-612-93

32,60 (3325)

70

390

81,0

8

08 ОСТ 34-10-612-93

40,00 (4080)

70

400

97,0

9

09 ОСТ 34-10-612-93

48,60 (4953)

70

419

100,0

10

10 ОСТ 34-10-612-93

58,43 (5960)

70

395

110,0

 

Подбор и поставка

Уточним наличие и подготовим КП по этой позиции

Поможем с подбором исполнения, проверим доступность на складе и отправим коммерческое предложение по выбранной позиции или аналогам.

Смотрите также

Другие подкатегории раздела

Опоры подвижные трубопроводов
подвижные скользящие опоры трубопроводов. Подбор,консультация,продажа со склада в Москве, доставка по РФ
Накладка Т94 серия 4.903-10 выпуск 1 на тройники усиливающая
Накладка Т94 серия 4.903-10 выпуск 1
Крепления газопроводов УКГ Серия 5.905 - 18.05: Узлы и детали крепления газопроводов
Серия 5.905 - 18.05: Узлы и детали крепления газопроводов
Опоры водопровода в футляре
Опоры водопровода в футляре.Подбор,консультация,продажа со склада в Москве, доставка по РФ
Опоры 313.ТС-008.000 скользящие для трубопроводов в ППУ изоляции
Опоры 313.ТС-008.000 скользящие для трубопроводов в ППУ изоляции.Подбор,консультация,продажа со склада в Москве, доставка по РФ
Опоры ТД-1-487-1997.00.000 скользящие для трубопроводов в ППУ изоляции
Опоры ТД-1-487-1997.00.000 Подбор,консультация,продажа со склада в Москве, доставка по РФ
Серия 5.900-7 выпуск 3. Серия 5.900-7 выпуск 4
Серия 5.900-7 выпуск 3. Серия 5.900-7 выпуск 4.Подбор,консультация,продажа со склада в Москве, доставка по РФ
Опоры ГОСТ 30732-2006 скользящие опоры для стальных трубопроводов
Опоры ГОСТ 30732-2006/Подбор,консультация,продажа со склада в Москве, доставка по РФ