Опоры А14Б 531.000 серия 5.900-7 выпуск 2
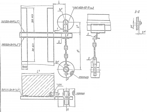
Опоры А14Б 531.000 серия 5.900-7 выпуск 2 подвижные корпусные приварные двухрядные с креплением к железнобетонной колонне, с подвеской для второго трубопровода Ду 50 - 100 мм
Опоры А14Б 531.000 применяются для крепления изолированных трубопроводов, транспортирующих воду и пар с температурой до +150°С, либо холодоноситель с температурой от -15°С до +15°С с максимальным давлением до 1,6 МПа (16 кгс/см2).
Стандартно опоры А14Б 531.000 изготавливаются из марки стали Ст.3,20,09Г2С.
Стандартное покрытие — транспортировочный грунт ГФ-021.
Подвижные опоры А14Б 531.000 СБ изготавливаются в соответствии с чертежами серии 5.900-7 выпуск 1

|
Обозначение |
Условный проход Ду, мм |
Допускаемые нагрузки, кгс |
Размеры, мм |
Масса, кг |
||
|
Вертикальн. |
Горизонтал. |
|||||
|
Р |
Q |
L |
l |
|||
|
А14Б 531.000 |
50 |
51 |
15,3 |
400,0 |
150,0 |
6,60 |
|
А14Б 531.000-01 |
50 |
51 |
15,3 |
400,0 |
150,0 |
7,10 |
|
А14Б 531.000-02 |
65 |
78 |
23,4 |
400,0 |
160,0 |
6,70 |
|
А14Б 531.000-03 |
65 |
78 |
23,4 |
400,0 |
160,0 |
7,10 |
|
А14Б 531.000-04 |
80 |
107 |
32,1 |
400,0 |
185,0 |
8,00 |
|
А14Б 531.000-05 |
80 |
107 |
32,1 |
400,0 |
185,0 |
13,60 |
|
А14Б 531.000-06 |
100 |
157 |
47,1 |
400,0 |
195,0 |
9,60 |
|
А14Б 531.000-07 |
100 |
157 |
47,1 |
400,0 |
195,0 |
10,00 |
|
А14Б 531.000-08 |
50 |
51 |
15,3 |
600,0 |
150,0 |
7,80 |
|
А14Б 531.000-09 |
50 |
51 |
15,3 |
600,0 |
150,0 |
8,30 |
|
А14Б 531.000-10 |
65 |
78 |
23,4 |
600,0 |
160,0 |
7,90 |
|
А14Б 531.000-11 |
65 |
78 |
23,4 |
600,0 |
160,0 |
8,30 |
|
А14Б 531.000-12 |
80 |
107 |
32,1 |
600,0 |
185,0 |
9,40 |
|
А14Б 531.000-13 |
80 |
107 |
32,1 |
600,0 |
185,0 |
9,80 |
|
А14Б 531.000-14 |
100 |
157 |
47,1 |
600,0 |
195,0 |
11,00 |
|
А14Б 531.000-15 |
100 |
157 |
47,1 |
600,0 |
195,0 |
11,50 |
Уточним наличие и подготовим КП по этой позиции
Поможем с подбором исполнения, проверим доступность на складе и отправим коммерческое предложение по выбранной позиции или аналогам.