Логотип АстронЭнерго

Подвески АПЭ 1402.0 серия 5.908-1

Подвески АПЭ 1402.0 серия 5.908-1

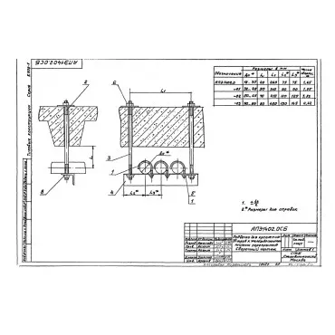
Подвеска АПЭ 1402.0 СБ серия 5.908-1 для крепления трех труб Дн 18-89 мм к железобетонным плитам перекрытия

Серия 5.908-1 - это стандарт типовых узлов крепления трубопроводов автоматического пожаротушения, рассчитанные на одновременное действие вертикальных и горизонтальных нагрузок.

Подвески АПЭ 1402.0 СБ серия 5.908-1 применяются для крепления к железобетонным плитам перекрытия трубопроводов установок автоматического пожаротушения (АУПТ).

Наружный диаметр прокладываемых трубопроводов Дн 18 – 89 мм.

Стандартно  опоры АПЭ серия 5.908-1 изготавливаются из марок стали сталь 3, 20, 09Г2С. Стандартное покрытие – транспортировочный грунт ГФ-021.

Подвески для крепления трех труб к железобетонным плитам перекрытия АПЭ 1402.0 СБ изготавливаются в соответствии с чертежами типовых конструкций серии 5.908-1.

 

Описание

Обозначение Размеры в мм Масса, кг
Дн L L₁ L₂ L₃
АПЭ 1402.0 18…30 40,0 260,0 75,0 75,0 1,65
АПЭ 1402.0-01 32…48 50,0 310,0 90,0 90,0 1,95
АПЭ 1402.0-02 50…65 70,0 410,0 110,0 125,0 3,82
АПЭ 1402.0-03 70…89 80,0 480,0 130,0 145,0 6,22

 

1773045232145-111567132-podveska_dlya_krepleniya_truboprovodov_ape_14020

1773045264519-107390421-podveska_dlya_krepleniya_truboprovodov_ape_14020_2

Подбор и поставка

Уточним наличие и подготовим КП по этой позиции

Поможем с подбором исполнения, проверим доступность на складе и отправим коммерческое предложение по выбранной позиции или аналогам.

Смотрите также

Другие подкатегории раздела

Опоры подвижные трубопроводов
подвижные скользящие опоры трубопроводов. Подбор,консультация,продажа со склада в Москве, доставка по РФ
Накладка Т94 серия 4.903-10 выпуск 1 на тройники усиливающая
Накладка Т94 серия 4.903-10 выпуск 1
Крепления газопроводов УКГ Серия 5.905 - 18.05: Узлы и детали крепления газопроводов
Серия 5.905 - 18.05: Узлы и детали крепления газопроводов
Опоры водопровода в футляре
Опоры водопровода в футляре.Подбор,консультация,продажа со склада в Москве, доставка по РФ
Опоры 313.ТС-008.000 скользящие для трубопроводов в ППУ изоляции
Опоры 313.ТС-008.000 скользящие для трубопроводов в ППУ изоляции.Подбор,консультация,продажа со склада в Москве, доставка по РФ
Опоры ТД-1-487-1997.00.000 скользящие для трубопроводов в ППУ изоляции
Опоры ТД-1-487-1997.00.000 Подбор,консультация,продажа со склада в Москве, доставка по РФ
Серия 5.900-7 выпуск 3. Серия 5.900-7 выпуск 4
Серия 5.900-7 выпуск 3. Серия 5.900-7 выпуск 4.Подбор,консультация,продажа со склада в Москве, доставка по РФ
Опоры ГОСТ 30732-2006 скользящие опоры для стальных трубопроводов
Опоры ГОСТ 30732-2006/Подбор,консультация,продажа со склада в Москве, доставка по РФ